查看完整案例


收藏

下载

翻译
建筑师提供的文字描述。 坐落在 Kootenay 山脉之外,一个紧凑的滑雪小屋将家庭成员聚集在一起,并将他们与周围无边无际的自然景观联系起来。
设计小屋是一个家庭项目。 房主 Sandra Bassett 聘请她在 Twobytwo 建筑工作室工作的姐姐和姐夫设计了一个三居室小屋,他们的家人可以在这里聚会、放松并参加他们最喜欢的冬季活动。 这座房子的结构由 Sandra 的丈夫 Chris Urbinsky 设计,他的钢铁设计背景成为整个机舱内展示功能的主要灵感来源。 这些功能包括一个三层高的悬臂式钢制阳台,它包裹着正面和侧面的立面,一个带有匹配的黑色钢材环绕和集成木制品的壁炉插件,以及一个横跨机舱三层的带有木踏板的工业楼梯。
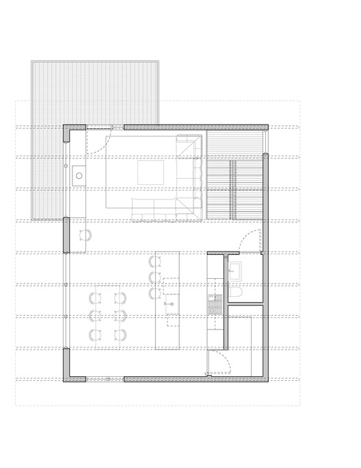
开放而宽敞的公共空间位于上层,在周围似乎无穷无尽的花旗松和雪松树梢之间构成了一个安静的聚会空间。 从上层阳台可以看到哥伦比亚河和湿地一览无余的全景,突出了小屋的整体乡村环境。 反向平面图将厨房和起居室置于上层,以充分利用这种静修般的体验。 主人套房和客房位于中间层,而锁定套房、齿轮室和车库位于较低层。 场地的倾斜性质使建筑物有两个不同的入口,一个通往低速齿轮区,一个通往私人后院。
小屋的建筑和整体材料调色板的灵感来自于小屋的自然环境。 外部和内部均采用了简单而原始的木材和混凝土调色板。 反向屋顶结构提供了展示坚固的花旗松椽子和胶合板构成上层天花板的机会。 整个房子都使用混凝土地板,并通过添加木制品和家具来取暖。 中性的室内装饰被用来保持简单的调色板,并突出场地自然植物群的大胆色彩。
小屋稳固地坐落在坚固的讲台上,简单的矩形脚印高耸于树木之上,并由狭窄的垂直板和板条覆层强调。 挤压的形式被一个简单的棚顶所覆盖,以最大限度地提高朝向主流景观的高度。 小木屋位于现场,以优化室内的阳光,其占地面积适中,对现有高原的干扰最小。
客服
消息
收藏
下载
最近











