查看完整案例


收藏

下载

翻译
The opening of Royal College of Art Woo Building, a significant expansion of the Ceramics & Glass and Jewellery & Metal department, marks the completion of the RCA’s highly anticipated Battersea Campus, bringing all of the RCA’s fine art programmes together at a single site for the first time in the institution’s history.
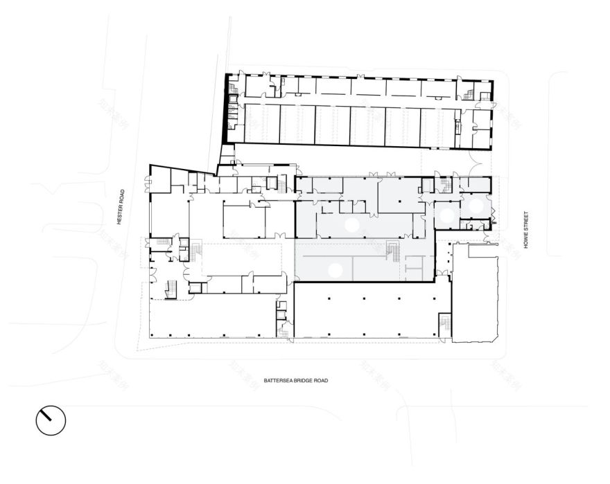
Seven years after winning the masterplan competition, the Royal College of Art Woo Building completes Haworth Tompkins’ trio of buildings, which also include the Dyson and Sackler buildings.
Courtesy of © Haworth Tompkins
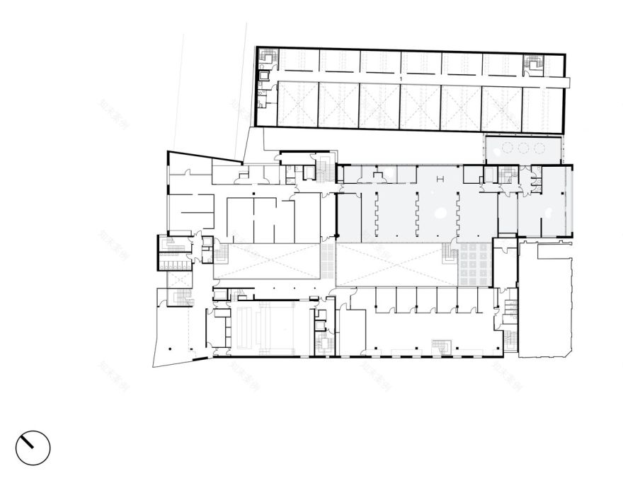
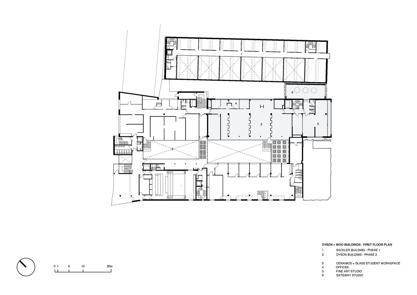
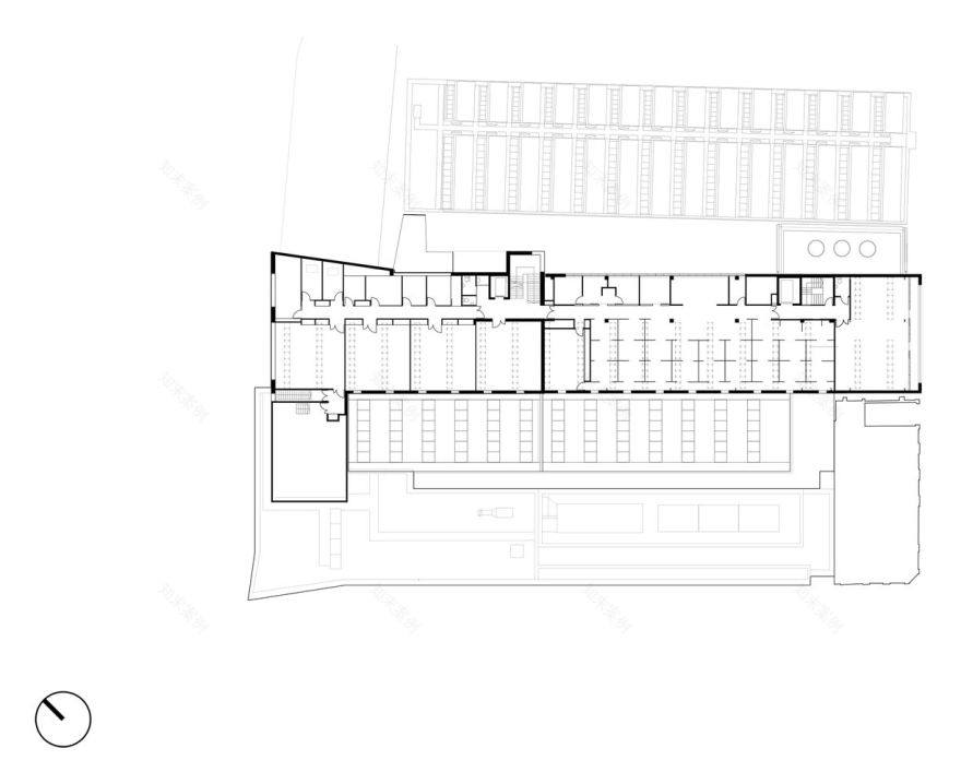
Along with Dyson and Sackler, the Woo Building completes Haworth Tompkins’ trio of buildings, which – with the earlier Sculpture Building – make up the Battersea campus. The Woo Building mirrors the factory-inspired Dyson, with a triple-height, glazed central hall accommodating specialist equipment alongside spacious workshops, while studios, offices and common spaces are housed on the three floors above.
Courtesy of © Haworth Tompkins
Royal College of Art Woo Building is named in honor of Sir Po-Shing and Lady Helen Woo, who has a long-established relationship with the College, having funded scholarships for ceramics, glass, silversmithing, metalwork and jewelry students since the early 1990s. The building also received funding from The Wolfson Foundation and Sir Siegmund Warburg’s Voluntary Settlement. The striking new building was designed by award-winning architects Haworth Tompkins.
Courtesy of © Haworth Tompkins
Haworth Tompkins worked in close collaboration with the academics, technicians, and students who will be using the space and considered every facet of the building in relation to the programmes’ specific needs. A new ceramics laboratory that is unique to the RCA has been installed together with a state-of-the-art kiln room containing kilns for a wide range of activities from large-scale sculpture to small gas-fired kilns for test and research work.
Courtesy of © Haworth Tompkins
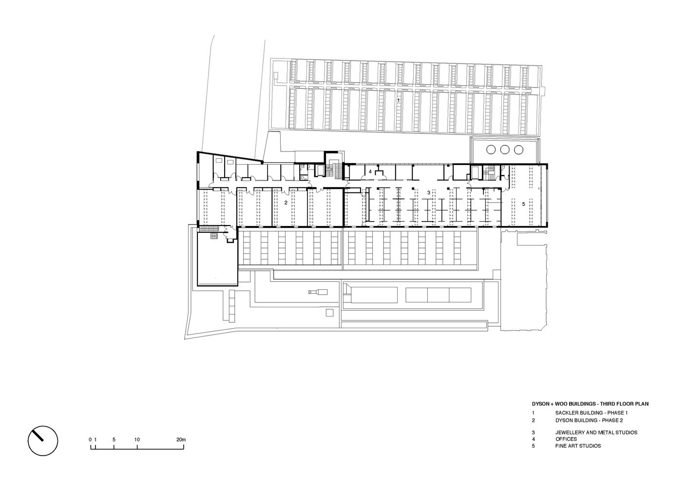
The Jewellery & Metal programme is housed on the top two floors of the Woo Building. The expansive, high-ceilinged studios are flooded with natural light from overhead skylights and windows that provide an inspiring view of London. Unlike the Ceramics & Glass workshops, which allow students to weave through openly, the Jewellery & Metal workshops are housed in clearly defined spaces as many of the making processes are incompatible and need to be contained.
Courtesy of © Haworth Tompkins
The addition of the Royal College of Art Woo Building promotes collaboration across programmes, leading to moments of cross-pollination as students from Ceramics & Glass and Jewellery & Metalwork in close proximity to each other and the School of Fine Art. The flow and shape of the building allow the cross-disciplinary interactions and connections across the disciplines that are central to what makes RCA education so transformational for students and researchers. Students from the Ceramics & Glass and Jewellery & Metal programmes will also benefit from the proximity of the metal foundry housed in the Sculpture Building, which is a rarity in London’s art schools.
Courtesy of © Haworth Tompkins
The influx of ceramicists, glassmakers, jewelers, and metalworkers will mix with Battersea’s fast-evolving creative scene as they join RCA Fine Art students and InnovationRCA start-up companies, along with international designers, artists and architects including Vivienne Westwood, Victoria Beckham, Will Alsop and Foster + Partners, who all have creative studios in Battersea.
Courtesy of © Haworth Tompkins
To celebrate the opening, site-specific gates have been commissioned from Design Products alumnus and prominent London designer Max Lamb. The gates are installed at the Howie Street entrance and allow pedestrian and vehicle access. Fabricated from anodized aluminum, which is colored to form a striking gradient from light grey, through vibrant turquoise to deep shades of navy, they have been designed to echo the architectural details of the building as well as the activities that will be taking place within it.
Courtesy of © Haworth Tompkins
Project Info:
Architects: Haworth Tompkins
Location: 14-22 Howie St, London SW11 4AY, UK
Area: 2662.0 m2
Project Year: 2015
Manufacturers: Levolux, Modebest, Mike Stoane, Scala Vetro, Richardson Roofing, Joyce and Reddington, Facade Engineering, Northbourne Engineering
Contractor: Vinci Construction
Project Manager: AECOM
Planning Consultant: DP9
Structural Engineer: Price & Myers
Service Engineer: Max Fordham LLP
Quantity Surveyor: Gardiner & Theobold
Fire Safety Engineers: Trenton Consultants
Façade Consultant: Montresor Partnership
Rights of Light Consultant: GIA
Disability Access Consultant: All Clear Designs Ltd
CDM Coordinators: PFB Construction Management Services
Signage Consultant: Cartlidge Levene
Overall Cost: £13,338,000
Construction Cost: £8,200,000
Project Name: Royal College of Art Woo Building
All Images Courtesy of Haworth Tompkins
Courtesy of © Haworth Tompkins
Courtesy of © Haworth Tompkins
Courtesy of © Haworth Tompkins
Courtesy of © Haworth Tompkins
Courtesy of © Haworth Tompkins
Courtesy of © Haworth Tompkins
Courtesy of © Haworth Tompkins
Courtesy of © Haworth Tompkins
Courtesy of © Haworth Tompkins
Courtesy of © Haworth Tompkins
Courtesy of © Haworth Tompkins
Courtesy of © Haworth Tompkins
Courtesy of © Haworth Tompkins
Courtesy of © Haworth Tompkins
Courtesy of © Haworth Tompkins
Courtesy of © Haworth Tompkins
Courtesy of © Haworth Tompkins
Courtesy of © Haworth Tompkins
Courtesy of © Haworth Tompkins
Site Plan
Ground Floor Plan
First Floor Plan
First Floor Plan
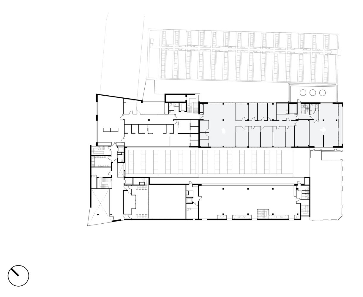
Second Floor Plan
Second Floor Plan
Third Floor Plan
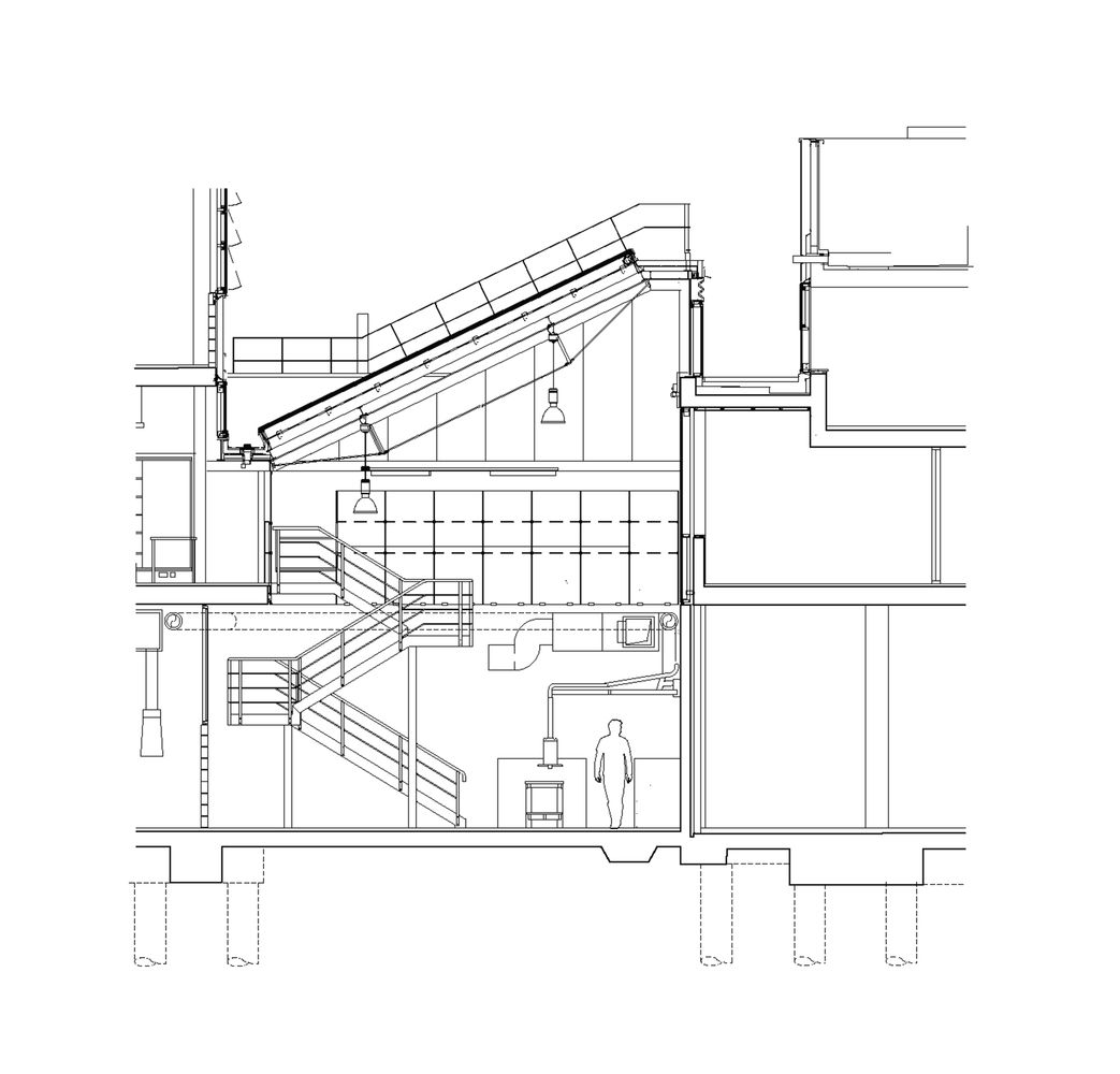
Section LL
Section LL
Section CC
Section CC
Longitudinal Section EE
Longitudinal Section EE
Detail 1
Detail 2
Diagram 1
Diagram 2
Diagram 3
客服
消息
收藏
下载
最近







































