查看完整案例


收藏

下载

翻译
Holabird & Root is pleased to introduce you to the Waubonsee Community College Plano Classroom Building. Designed as a stand-alone satellite campus, the building contains all the necessary programmatic elements for course instruction, student activities, and college administration and operations.
photography by © Jim Steinkamp Photography
The building’s strategic placement takes advantage of access and views to Lake Plano and creates prominent views of the building from the surrounding community.
photography by © Jim Steinkamp Photography
The design is intended to extend the mission and vision of the Waubonsee Community College Plano Classroom Building while creating a unique identity for this campus. The interior spaces serve multiple purposes. The student lobby is a stair vestibule, an assembly space, foyer to administration, and from the outside, a lantern-like window to the community.
photography by © Jim Steinkamp Photography
Project Info:
Architects: Holabird & Root
Location: Plano, IL 60545, USA
Area: 33000.0 ft2
Photographs: Jim Steinkamp Photography
Project Name: Waubonsee Community College Plano Classroom Building
photography by © Jim Steinkamp Photography
photography by © Jim Steinkamp Photography
photography by © Jim Steinkamp Photography
photography by © Jim Steinkamp Photography
photography by © Jim Steinkamp Photography
photography by © Jim Steinkamp Photography
photography by © Jim Steinkamp Photography
photography by © Jim Steinkamp Photography
photography by © Jim Steinkamp Photography
photography by © Jim Steinkamp Photography
photography by © Jim Steinkamp Photography
photography by © Jim Steinkamp Photography
photography by © Jim Steinkamp Photography
photography by © Jim Steinkamp Photography
photography by © Jim Steinkamp Photography
photography by © Jim Steinkamp Photography
photography by © Jim Steinkamp Photography
photography by © Jim Steinkamp Photography
photography by © Jim Steinkamp Photography
photography by © Jim Steinkamp Photography
photography by © Jim Steinkamp Photography
photography by © Jim Steinkamp Photography
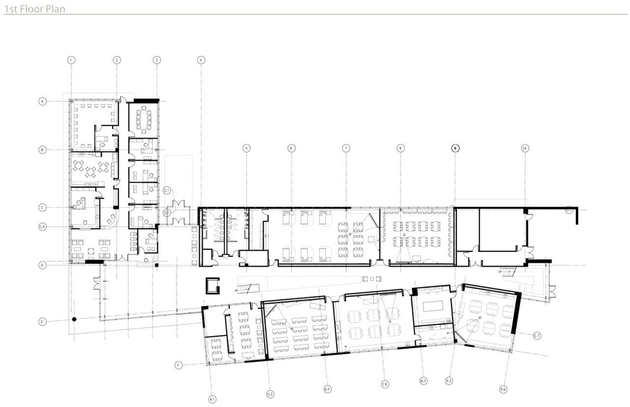
floor plan
plan
客服
消息
收藏
下载
最近


























