查看完整案例


收藏

下载

翻译
Berklee College of Music was designed by William Rawn Associates, Fronting on Massachusetts Avenue, the new multi-use residence hall for Berklee College of Music strengthens the College’s multiple connections to the City of Boston.
Photography by © Bruce T. Martin
The transparent facade reveals the life of the building while creating an active urban street edge.
Photography by © Bruce T. Martin
The building includes freshman housing, a 400-seat, 2-story Dining Hall serving as a student performance venue overlooking the street, music technology studios, student activity, and gathering spaces, and ground-floor retail. (176,000 g.s.f.)
Photography by © Bruce T. Martin
Project Info:
Architects: William Rawn Associates
Location: Boston, MA, United States
Principal for Design: Cliff Gayley, AIA, LEED AP
Area: 167000.0 ft2
Project Year: 2014
Photographs: Bruce T. Martin Photography
Associate Principal for Design: Sam Lasky, AIA, LEED AP
Music Technology Space Design & Performance/Dining Space Acoustical Design: Walters-Storyk Design Group
Principal for Design: John Storyk, AIA
Structural Engineer: LeMessurier Consultants
MEP/FP/IT/Security Engineer: Rist-Frost-Shumway Engineering
Civil Engineer: Nitsch Engineering
Geotechnical Engineering: Haley & Aldrich
Landscape Architect: Landworks Studio, Inc.
Lighting Designer: Lam Partners, Inc.
Sustainability Consultant: The Green Engineer, Inc.
Food Service Consultant: Ricca Newmark Design
Code Consultant: R.W. Sullivan Engineering
Acoustical Work: Acentech
Transportation Consultant: Vanasse Hangen Brustlin
Vertical Transportation Consultant: Syska Hennessy Group
Project Name: Berklee College of Music
Photography by © Bruce T. Martin
Photography by © Bruce T. Martin
Photography by © Bruce T. Martin
Photography by © Bruce T. Martin
Photography by © Bruce T. Martin
Photography by © Bruce T. Martin
Site Plan
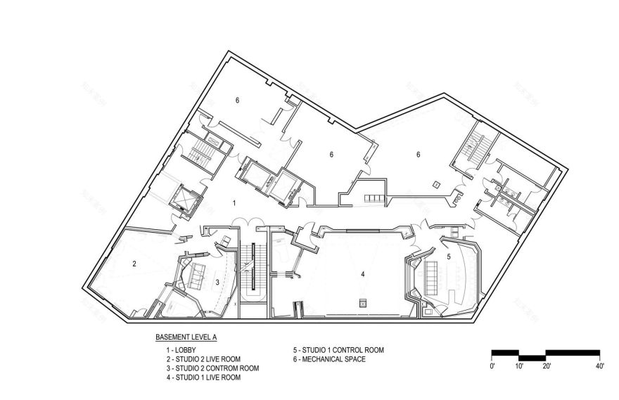
Basement Level A
Basement Level B
Typical Residence Hall Level
Second Floor Plan- Dining
Second Floor Plan- Performance
Third Floor Plan
客服
消息
收藏
下载
最近















