查看完整案例


收藏

下载

翻译
Faculty of Economics Ghent University
The campus path that crosses the building, the topography, the nearby existing economics building, and the new program together generate the form of the building.
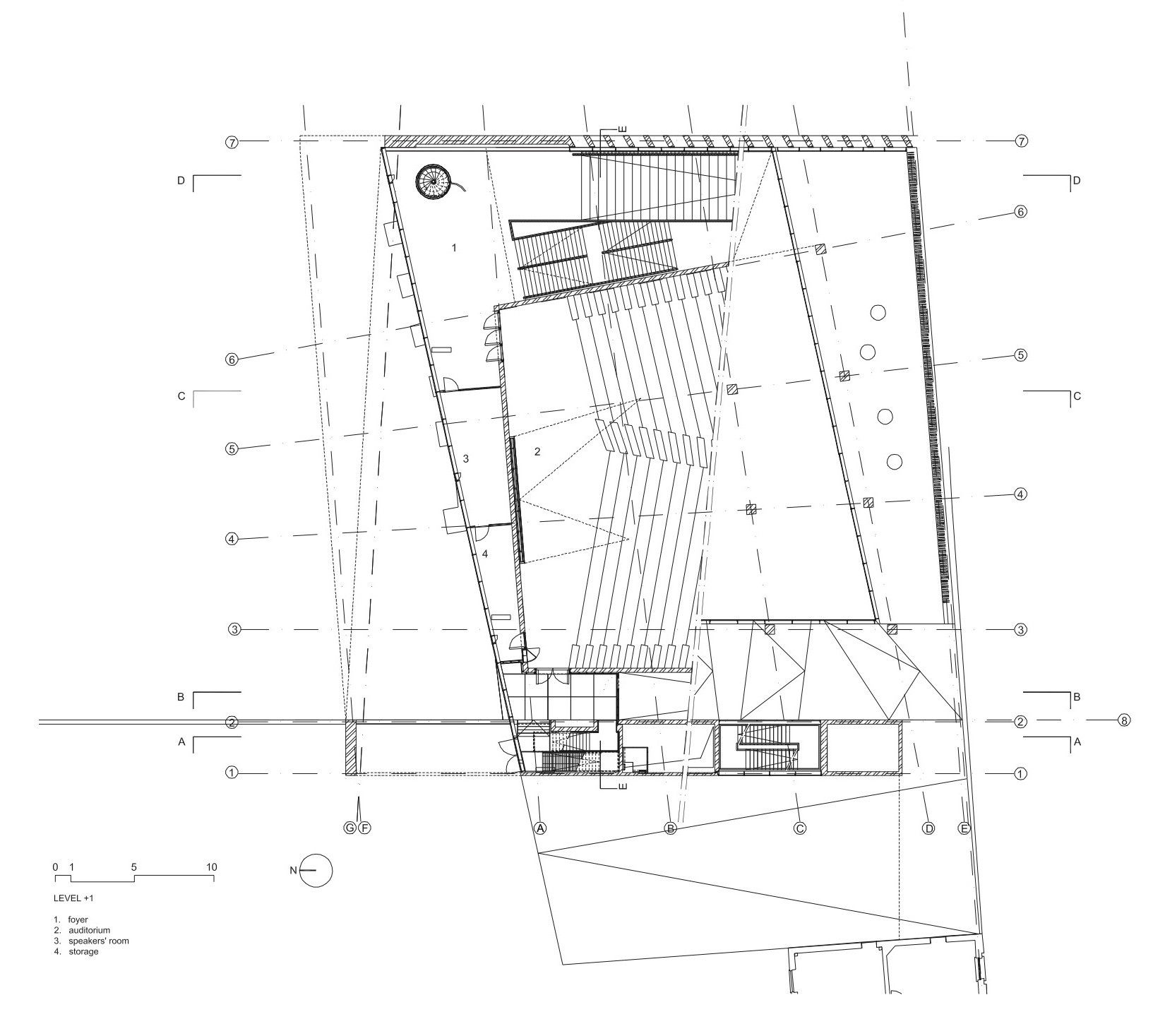
The path leads down from the street towards the roof of the existing building. On one side are organized all the vertical circulation shafts of the new building, on the other side a double height foyer is accessed from the path.
photography by © Frans Parthesius
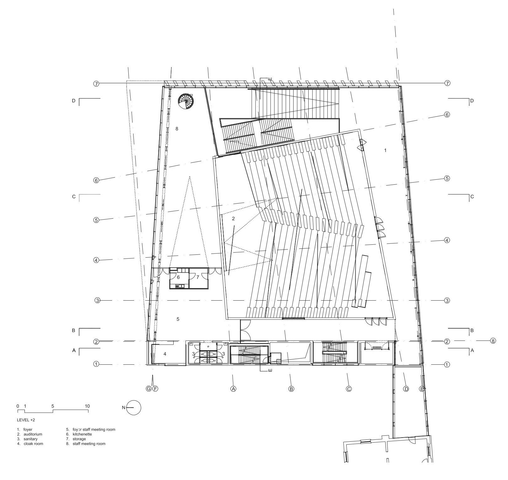
The auditorium is situated above it and accessed through the main stair. Behind is a meeting room of the faculty.
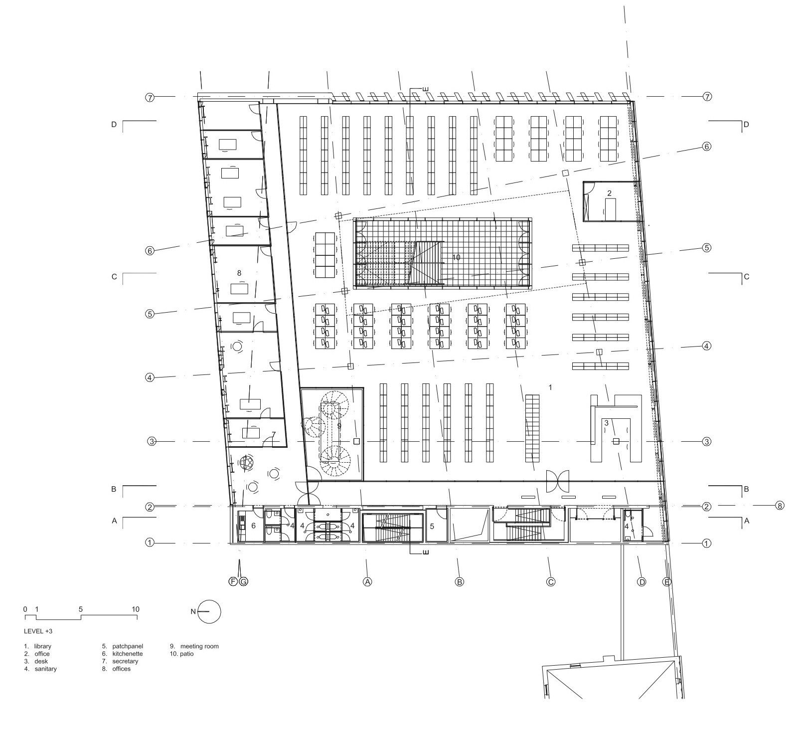
On the top level, a library is organized around a patio, combined with offices. The front and back façade are in glass and cantilever outwards; two lateral façades are of concrete, one of them being a screen made out of 20m high concrete fins.
photography by © Frans Parthesius
Project Info
Architects : Xaveer De Geyter Architects, Stéphane Beel Architects
Location : Ghent, Belgium
Year : 2016
Type : Educational
Photographs : Frans Parthesius
photography by © Frans Parthesius
photography by © Frans Parthesius
photography by © Frans Parthesius
photography by © Frans Parthesius
photography by © Frans Parthesius
photography by © Frans Parthesius
photography by © Frans Parthesius
Ground Floor Plan
First Floor Plan
Second Floor Plan
Third Floor Plan
Roof Floor Plan
Section
Section
Section
客服
消息
收藏
下载
最近

















