查看完整案例


收藏

下载

翻译
New Campus Development of Chu Hai College of Higher Education
The new campus design signifies a highly linked & connected institution. It looks into the compact urban condition of Hong Kong itself for direct inspiration and epitomizes a miniature city, dense and connected.
Photography By Virgile Simon Bertrand
The spatial organization maximizes density by stacking multiple slab blocks of different programs vertically on top of each other over a podium of communal activities.
Photography By Virgile Simon Bertrand
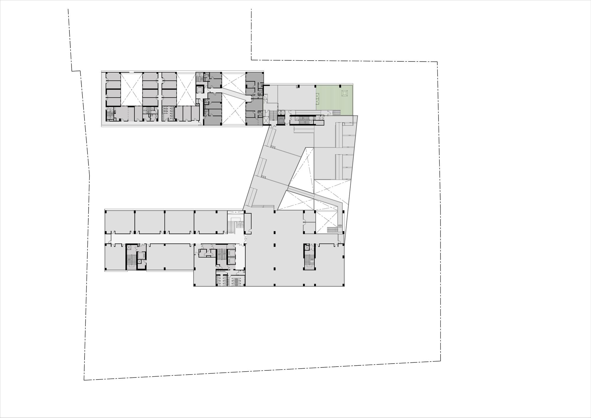
The footprints of the buildings are restricted to that of the existing foundations to minimize unnecessary modification. Programs requiring larger footprints such as the classrooms and libraries are suspended out from the main slab blocks to make up for the required floor area.
Photography By Virgile Simon Bertrand
Architecturally, the library and the student union are remodeled as bridges that connect the east and west blocks into an iconic gateway. The classrooms on the upper floors are tapered outwards, creating a sloping wall as a reflector to redirect sunlight to the interior corridors even at lower levels.
Courtesy of Rocco Design Architects Limited
The elevation of the building reflects an authentic expression of its complex section. Formally, the cantilevers and bridges extending from the slab blocks resemble the image of a tree crown and symbolize the primitive learning space under the shade of the green canopy. Its composition and construction also resemble the inherent spirit of Chinese Calligraphy, namely the beautiful balance of solid and void in the elevation. The erection of the new campus in essence alludes to the creation of a new character: a new rudiment that would form the root of new knowledge for the generations to come.
Courtesy of Rocco Design Architects Limited
Project Info.
Architects : Rocco Design Architects
Location : Tuen Mun, Hong Kong
Architect in Charge : Rocco Yim
Design Team : Patrick Lee,CM Chan, William Tam, Henry Ho, Stephen Chan, Hoi-Wai Sze, Agnus Lau, Li Qingyue, Julia Mok, Nicholas Ho, Justin Chan
Year : 2016
Project Type : College / Educational
Photographs : Rocco Design Architects
Photography By Virgile Simon Bertrand
Courtesy of Rocco Design Architects Limited
Photography By Virgile Simon Bertrand
Courtesy of Rocco Design Architects Limited
Courtesy of Rocco Design Architects Limited
Courtesy of Rocco Design Architects Limited
Photography By Virgile Simon Bertrand
Photography By Virgile Simon Bertrand
Courtesy of Rocco Design Architects Limited
Courtesy of Rocco Design Architects Limited
Courtesy of Rocco Design Architects Limited
Courtesy of Rocco Design Architects Limited
Courtesy of Rocco Design Architects Limited
Photography By Virgile Simon Bertrand
Render
Render
Render Section
GF Plan
1F Plan
4F Plan
Section
Section
客服
消息
收藏
下载
最近
























