查看完整案例


收藏

下载

翻译
Murphy Jahn approached the Veer Towers design with the intention of exhibiting urban responsibility, paying particular attention to the building’s performance in terms of function and systems. The larger challenge was to make the project an integral part of Las Vegas but also to give its buildings and spaces a unique and strong identity. Following the break are photographs and description about this 2010 LEED Gold Certified building.The design solution strives for simplicity and dynamism, reinforcing the iconic character of the whole complex. The idea was to establish a functional basis that defines a unique shape, which derives from a rational leasing span.
Photography by © Rainer Viertlboeck
The towers’ cores and lobbies are planned into the retail base while the residential uses float above it.The use of natural air and light is maximized throughout the building. Horizontal sunscreen blades provide shading on the east, south and west facades and reduce the energy consumption while minimizing the technical equipment requirements and maximizing occupant comfort.Additionally, approximately 50% of the glass tiles on all four facades are color frit coated vision glass which further contributes to the energy efficiency of the facade while imparting a distinct character and aesthetic to the design.
Photography by © Rainer Viertlboeck
Project Info.
Architects : Murphy/Jahn
Location : Las Vegas, United States
Year : 2010
Type : Residential
Associate Architect : AAI Architects Inc
Photographs : Rainer Viertlboeck
Photography by © Rainer Viertlboeck
Photography by © Rainer Viertlboeck
Photography by © Rainer Viertlboeck
Photography by © Rainer Viertlboeck
Photography by © Rainer Viertlboeck
Photography by © Rainer Viertlboeck
Photography by © Rainer Viertlboeck
Photography by © Rainer Viertlboeck
Photography by © Rainer Viertlboeck
Photography by © Rainer Viertlboeck
Photography by © Rainer Viertlboeck
Photography by © Rainer Viertlboeck
Photography by © Rainer Viertlboeck
Photography by © Rainer Viertlboeck
Photography by © Rainer Viertlboeck
Photography by © Rainer Viertlboeck
Photography by © Rainer Viertlboeck
Photography by © Rainer Viertlboeck
Photography by © Rainer Viertlboeck
Photography by © Rainer Viertlboeck
Ground Floor Plan
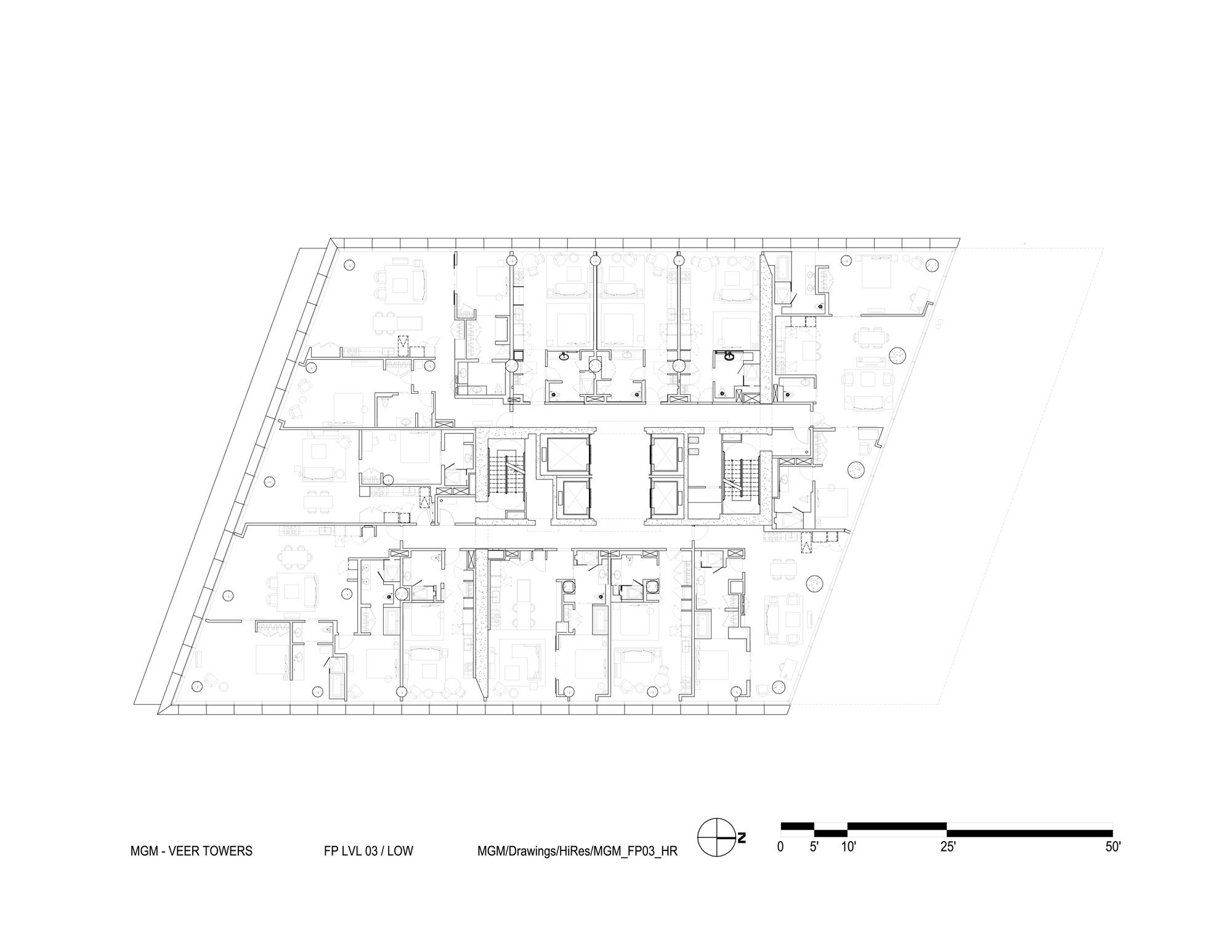
Plan Low
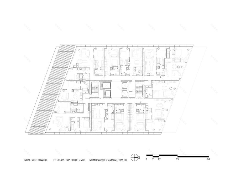
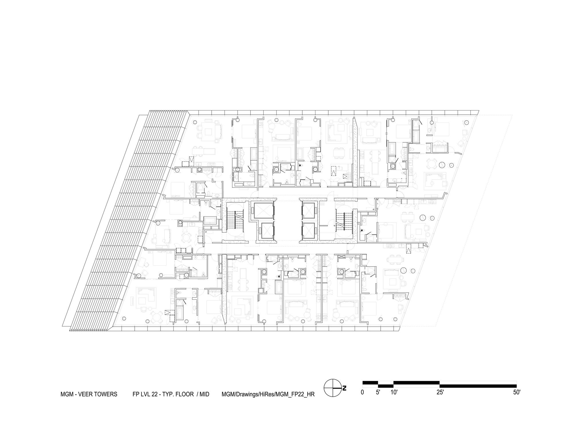
Plan Mid
Plan High
FaçadeGround Floor
Section
South Elevation
West Elevation
客服
消息
收藏
下载
最近






























