查看完整案例


收藏

下载

翻译
In 2003, Groningen municipal council launched a project “The Intense City” to keep the city compact by increasing the building density of districts around the Centre. The Rokade Residential Tower Block is situated on one of the first increased density locations, and marks the corner of the Corpus den Hoorn Laan and the Sportlaan, the avenue providing access to the Hoornse Meer district.
Photography by © Allard van der Hoek, Peter de Kan
De Rokade is immediately adjacent to the nursing and care home, Maartenshof, which has been extensively renovated. The apartments for purchase are intended for the “younger seniors”. The building is linked to Maartenshof in a subtle way. In this way, Maartenshof can supply diverse forms of care to the buyers, without this delicate relationship being visible to the outside world.
Towers in the Netherlands often have a minimum of four dwellings per layer for budgetary reasons. This is also true of De Rokade. The building is 21 floors high and seems very slim due to the cross-shaped ground plan. The four apartments are situated in L-form around the inside angles of the tower. In this way, the dwellings combine the beautiful view with an introverted quality.
Photography by © Allard van der Hoek, Peter de Kan
The apartments’ façades, load bearing construction and installations have been made ready for three different layout possibilities. The present and future inhabitants will be able to determine their own ground plan in this way. The building is extra sustainable according to Groninger Residential Quality directives.
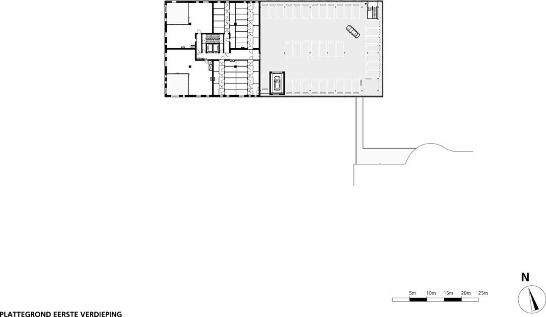
Instead of an expensive and dark underground parking garage, we have elevated parking to the two floors above the physiotherapists’ practice accommodation. The inhabitants reach their parking place on the first or second floor with a car lift. The garage is naturally ventilated, has daylight and a view and, with construction costs of €15.000 per parking place, is cheaper than the traditional underground box.
Photography by © Allard van der Hoek, Peter de Kan
Project Info:
Architects: Arons en Gelauff Architecten
Location: Groningen, The Netherlands
Architectural Team: Joost van Bergen, Jan Bart Bouwhuis, Rianne Kreijne, Adrie Laan, Floria Schrage, Aldrik Stegenga, Mahir Dündar, Claudia Temperilli, Mariska Koster-Berbé
Landscape Architect: Kraaivanger Urbis
Contractor: Schutte Bouw, Zwolle
Client: Woonstichting (housing association) De Huismeesters, Groningen
Budget: 9.600.000 EURO (US $14.9 millions)
Area: 15400.0 sqm
Project Year: 2003
Photography by © Allard van der Hoek, Peter de Kan
Photography by © Allard van der Hoek, Peter de Kan
Photography by © Allard van der Hoek, Peter de Kan
Photography by © Allard van der Hoek, Peter de Kan
Photography by © Allard van der Hoek, Peter de Kan
Photography by © Allard van der Hoek, Peter de Kan
Photography by © Allard van der Hoek, Peter de Kan
Photography by © Allard van der Hoek, Peter de Kan
Photography by © Allard van der Hoek, Peter de Kan
Plan 1
Plan 2
Plan 3
Plan 4
plan 6
Elevation
Elevation
Elevation
Sketch
客服
消息
收藏
下载
最近























