查看完整案例


收藏

下载

翻译
Designed by SPBR Arquitetos, Ubatuba House II, Two main goals have led the design process: [1] not touch the ground; [2] to create an outside platform where topography, with 50% of slope, has provided any flat piece of land. This weekend house itself was arranged in one main square prism: 10m by 10m and 6m high.
Photography by © Nelson Kon
This volume was placed properly detached from the street, where the ground level was deep enough to accommodate two enclosed floors and an open space underneath.
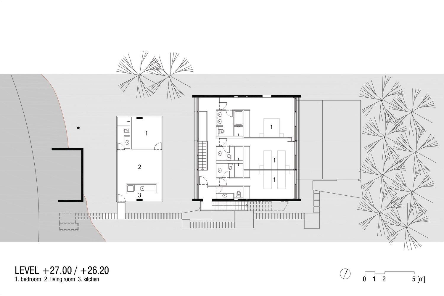
Its rooftop provides that outside platform as a belvedere welcoming people to the house. Downstairs we first reach the bedrooms level and below it the living room and kitchen. Underneath, attached to the ground level, the portion sheltered by the house was taken as a veranda.
Photography by © Nelson Kon
This main volume was complemented with two satellites, two small side volumes: the first one plays as the extension of both street and rooftop providing a platform for parking are and custodian house bellows it; the second one is an extension of the veranda to make the swimming pool and a mechanical space at the bottom.
Photography by © Nelson Kon
Project Info:
Architects: SPBR Arquitetos
Location: Ubatuba, Brazil
Architect in Charge: Angelo Bucci
Area: 350.4 sqm
Project Year: 2014
Photographs: Nelson Kon
Project Name: Ubatuba House II
Photography by © Nelson Kon
Photography by © Nelson Kon
Photography by © Nelson Kon
Photography by © Nelson Kon
Photography by © Nelson Kon
Photography by © Nelson Kon
Photography by © Nelson Kon
Photography by © Nelson Kon
Photography by © Nelson Kon
Photography by © Nelson Kon
Photography by © Nelson Kon
Photography by © Nelson Kon
Photography by © Nelson Kon
Photography by © Nelson Kon
Photography by © Nelson Kon
Photography by © Nelson Kon
Photography by © Nelson Kon
Photography by © Nelson Kon
Photography by © Nelson Kon
Photography by © Nelson Kon
Photography by © Nelson Kon
Photography by © Nelson Kon
Photography by © Nelson Kon
Photography by © Nelson Kon
Photography by © Nelson Kon
Photography by © Nelson Kon
Photography by © Nelson Kon
Photography by © Nelson Kon
Photography by © Nelson Kon
Photography by © Nelson Kon
Photography by © Nelson Kon
Photography by © Nelson Kon
Photography by © Nelson Kon
Ground Floor Plan
Floor Plan
Floor Plan
Floor Plan
Section
South Elevation
客服
消息
收藏
下载
最近









































