查看完整案例


收藏

下载

翻译
MA House
The commission of the house comes together with the explicit petition to use stone as the main construction material. The decision doesn’t respond necessarily to esthetic reasons but more likely to its common existence in the place, its little need for maintenance and its low cost for built square meter. Such premises are taken as a project challenge both in a structural, typological and esthetic way.
The MA house is set up on the outskirts of Tepoztlán, a small picturesque village of prehispanic origins, that has a colonial urban center. Located at 60 Km from Mexico City, Tepoztlán is well known for its sunny days, a comfortable temperature all year long, and its lush vegetation. Water is a key actor over the rainy season, the time when nature demonstrates its intense vitality.
Photography by © Sandra Pereznieto
The project for the MA house responds to the search of a bright, wide and comfortable space built through a material that, at first, is hard and uncomfortable: the stone. With the presence of two major mountains on both sides of the plot, and two neighbors in the opposite direction, the house is a basic volumetric exercise: open the views and the main spaces to the mountains, and neglect the openings to the sides; and the definition of a central and open patio, a crack that defines the access of the house. However, this house doesn’t behave as a standard patio-house: typically, those are built through a central space around which all the relations and circulations take place; the MA house, meanwhile, develops all the circulations at its outer perimeter.
Photography by © Sandra Pereznieto
The house is a succession of spaces with differentiated uses that define the outer limit, a generic geometrical square. On top of such continuity of regular and perimeter circulations, the project overlays a second spatial strategy: the definition of a sequence of open and enclosed spaces; the exterior spaces -roofed patios-, intersect diagonally the volume and break with the rigidity of the perimeter performance.
Photography by © Sandra Pereznieto
The house is finally drawn as the addition of three pavilions unified by a unique roof, generating two covered patios; the roof is continuous, and rests on top of the structural stone walls that are the main asset of the house, the texture, a rough and imposing material that builds up the space, and reinforces the views and the power of nature. The house is a sequence of open and ever-changing relations with nature; and always, as a backstage, the two immense mountains of Tepoztlán.
Photography by © Sandra Pereznieto
Project Info
Architects: Cadaval & Solà-Morales
Location: Morelos, Mexico
Architects in Charge: Eduardo Cadaval & Clara Solà-Morales
Area: 300.0 m2
Year: 2016
Type: Residential
Photographs: Sandra Pereznieto
Photography by © Sandra Pereznieto
Photography by © Sandra Pereznieto
Photography by © Sandra Pereznieto
Photography by © Sandra Pereznieto
Photography by © Sandra Pereznieto
Photography by © Sandra Pereznieto
Photography by © Sandra Pereznieto
Photography by © Sandra Pereznieto
Photography by © Sandra Pereznieto
Photography by © Sandra Pereznieto
Photography by © Sandra Pereznieto
Photography by © Sandra Pereznieto
Photography by © Sandra Pereznieto
Photography by © Sandra Pereznieto
Photography by © Sandra Pereznieto
Photography by © Sandra Pereznieto
Photography by © Sandra Pereznieto
Photography by © Sandra Pereznieto
Photography by © Sandra Pereznieto
Photography by © Sandra Pereznieto
Photography by © Sandra Pereznieto
Photography by © Sandra Pereznieto
Photography by © Sandra Pereznieto
Photography by © Sandra Pereznieto
Photography by © Sandra Pereznieto
Photography by © Sandra Pereznieto
Photography by © Sandra Pereznieto
Model
Model
Model
Model
Site Plan
Ground Floor
First Floor
Section
Section
Section
Section
Section
Section
Section
Section
North Elevation
South Elevation
East Elevation
West Elevation
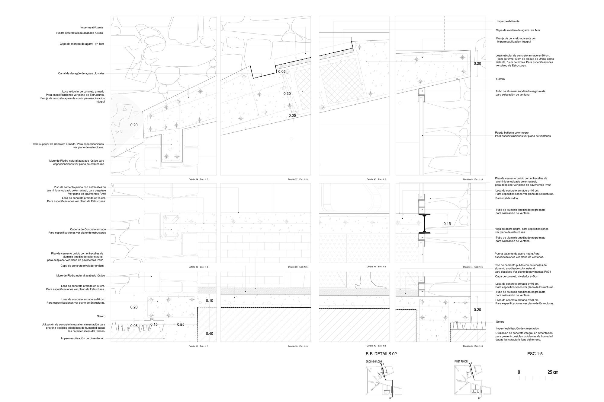
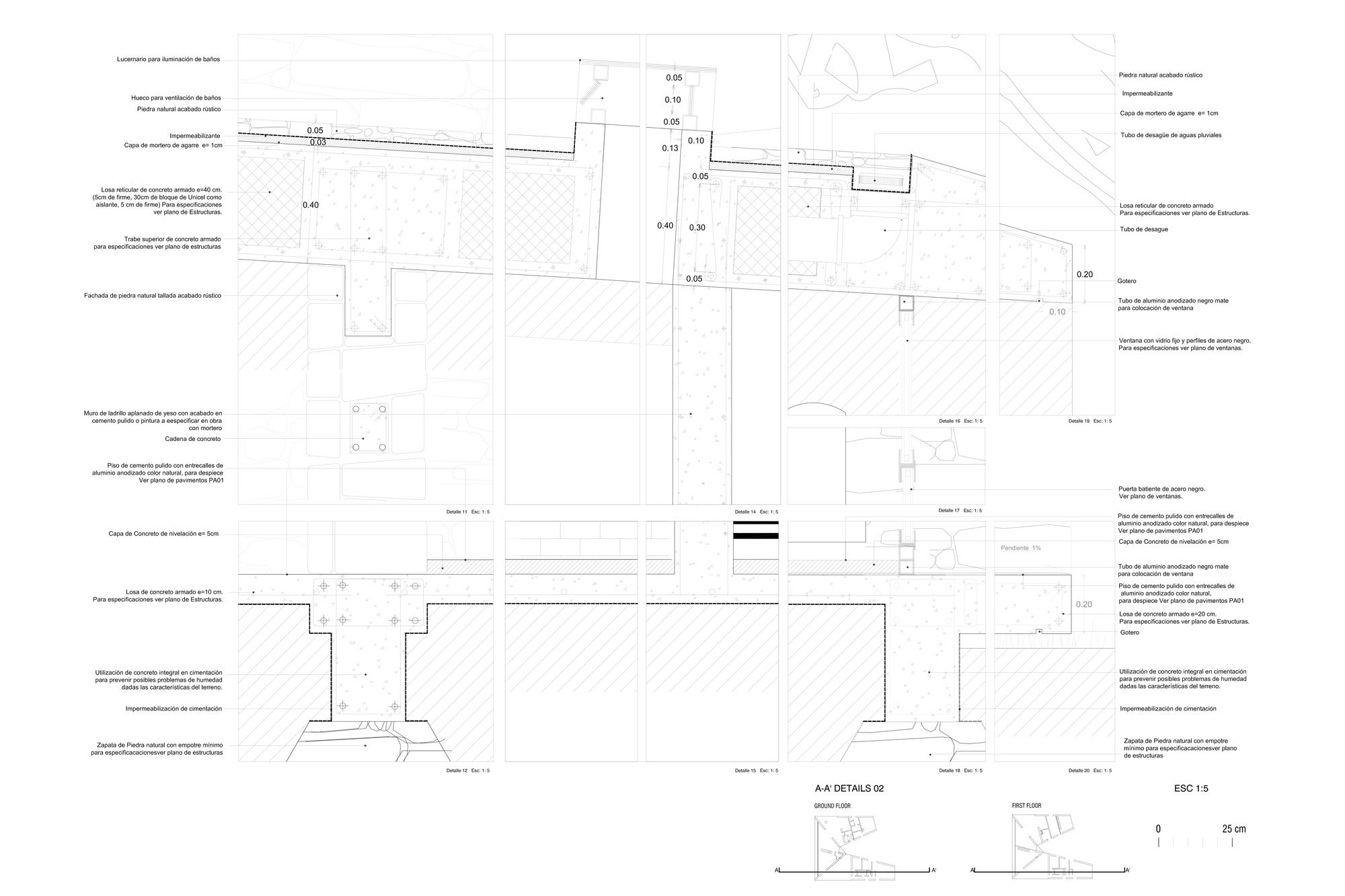
Details
Details
Details
Details
Diagram
Transition Diagram
客服
消息
收藏
下载
最近






















































