查看完整案例


收藏

下载

翻译
The building sit is a street corner, in a natural terrace by the sea and the occupation of that is based on the search for optimal morphology of the land as a form of resolution for the deployment proposal.The house was constructed in the middle of the field and the entrance is made by the more favorable allotment, ie, the street perpendicular to the sea, thus avoiding a large movement of earth and conflicts with a possible connection to the sea side avenue, keeping depth look at the horizon.
Orientation East / West allows optimize natural lighting and the height of two storeys above the ground remains about the buildings that surround it.
Photography by © Fernando Guerra | FG+SG
The outside coating is accomplished through a ventilated facade with white Portuguese marble slabs Estremoz, 2,70 x1,00m, sand blasted, with the approximate height of each floor housing. This solution, ventilated façade, provides a better thermal performance and sealing the building before the “aggressiveness” of the sea air and the white marble, together with a slightly mirrored glass facade make it possible to “dilute” its presence in the line of homes that accompanying the promenade, thus avoiding the monolithic nature of the solution.The inner wall, an integral part of construction, made in granite blocks (0.12 m esp.) grey Évora, also reduce the presence of the house by creating another element of vertical transition with the maximum height of the construction, while that functional as the best natural windbreak against the strong north wind, predominantly in the region, allowing you to enjoy the garden in a more comfortable way.
Photography by © Fernando Guerra | FG+SG
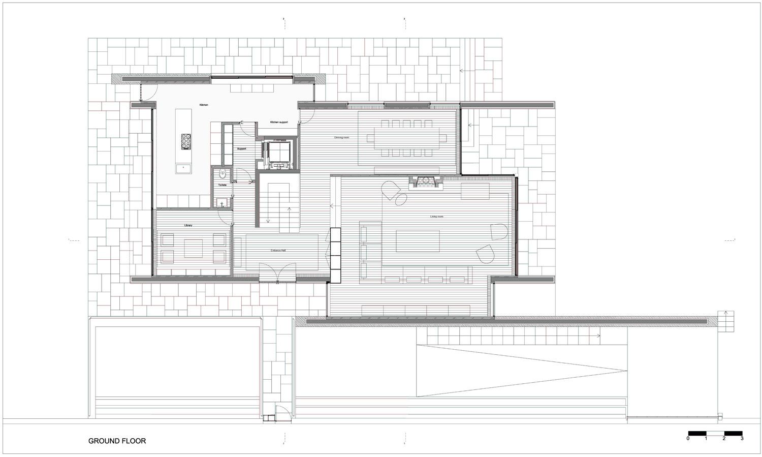
With two floors above the threshold and one floor below, the internal distribution is perfectly stratified, the ground floor are common areas like the living room, dining room, kitchen / pantry, an office and a small toilette. First floor is occupied by the private housing. Four rooms with their own dressing areas and bathrooms.
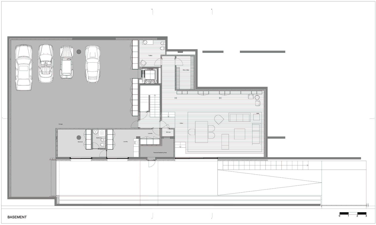
Basement works as service areas, garage, storage rooms, technical areas and a studio that receives light through a gap that communicates with the car access to garage.
Photography by © Fernando Guerra | FG+SG
Project Info :
Architects : Sergio Koch
Project Area : 1275.0 sqm
Project Year : 2009
Project Location : Porto, Portugal
Constructed area : 655 sqm
Photography by © Fernando Guerra | FG+SG
Photography by © Fernando Guerra | FG+SG
Photography by © Fernando Guerra | FG+SG
Photography by © Fernando Guerra | FG+SG
Photography by © Fernando Guerra | FG+SG
Photography by © Fernando Guerra | FG+SG
Photography by © Fernando Guerra | FG+SG
Photography by © Fernando Guerra | FG+SG
Photography by © Fernando Guerra | FG+SG
Photography by © Fernando Guerra | FG+SG
Photography by © Fernando Guerra | FG+SG
Photography by © Fernando Guerra | FG+SG
Photography by © Fernando Guerra | FG+SG
Photography by © Fernando Guerra | FG+SG
Photography by © Fernando Guerra | FG+SG
Photography by © Fernando Guerra | FG+SG
Plan
Plan
Plan
Plan
Section
Section
Elevation
客服
消息
收藏
下载
最近


























