查看完整案例


收藏

下载
天津科技大学体育馆,是在第十三届全运会的号召下建设于高校中的全新场馆。项目位于天津科技大学泰达校区西南,距全运村约58公里,主要由主馆、副馆和风雨操场三个功能单元组成。其中,主馆体育馆定位为甲级馆,具备举办国际单项室内体育赛事和全国综合体育赛事的条件,并同时服务于学校及周边社区,满足训练、教学、集会、文艺演出等各种功能。
项目的设计明确了全运会的赛时使用与高校赛后使用并举的目标,使设计既符合全运会比赛的专业性、高标准,又满足高校长期使用的多功能、轻维护需求。
▎设计理念
设计巧妙地在用地中心多向轴线的交汇处引入圆形开敞空间,成功处理好场地中多个方向的空间和景观轴线关系,灵活地将建筑形式、使用功能以及校园景观地融为一体,给刚硬的体育馆带来一丝圆润柔美的动感气息,使总平布局在理性和谐的前提下不失有机。
鸟瞰图
总平面分析图
设计在场地轴线交汇处引入圆形开敞空间
可开展多种户外活动的圆形露天剧场,外周是连接了主馆、副馆、风雨操场的三层休闲环廊。有活动时,环廊可成为剧场的一圈楼座,并提供水吧、健身、阅读、交往等休闲功能,成为共享服务中心,极大地扩展了体育馆的功能内涵。
休闲环廊东北角
风雨操场东北角
主馆东南角
主馆西侧滑板公园
主馆西北角
体育馆的各场馆单元围绕此圆形开敞空间扇形展开,并顺应校园路网和边界,生成简洁而理性实用的方形体量,构成内圆外方的总体布局形式。
露天剧场
体育场馆在功能模式上具有针对学校具体使用的相应设计策略。主馆采用了三边固定看台加活动坐席、第四边全活动坐席的非对称设计。第四边活动坐席下布置了电动升降舞台,可以在看台、舞台、主席台、训练场地之间转换。观众席的布置形式使体育馆既可满足各种正规比赛的场地要求,也转变为举办各种集会、文艺汇演的大型礼堂,可满足全校一届学生在此举办典礼。主馆共有坐席4980个,其中活动坐席占比达37%,使布置具有充分的灵活性。同时,其比赛附属用房也采用通用可变的弹性设计,在赛后都可转换成学生活动用房,大大地提高了赛后的场馆使用率。
主馆西侧
主馆正立面
主馆入口
副馆位于主馆与风雨操场中间,与主馆运动员区直接联系,它在赛时与主馆组成完整的甲级馆功能,在平时则和风雨操场、休闲环廊组成学生体育活动中心,灵活转换平时和赛时使用模式。
主馆和副馆东南立面
天津科技大学体育馆简洁方正的造型传达了高校教育希冀的求真淳朴、含蓄典雅风格。立面采用了陶土板干挂,预制清水混凝土百叶板,以及风琴状的玻璃幕墙,形成富有韵律感的垂直线条,产生丰富的光影变化。在化解体育馆庞大体量的同时,经济、耐久、易洁的材料契合了高校高强度、轻维护的使用要求。
立面采用了陶土板干挂,预制清水混凝土百叶板,以及风琴状的玻璃幕墙
立面细部
经过第十三届全运会艺术体操和蹦床项目比赛场地的检验,以及学校近几年的使用,天津科技大学体育馆总体上获得了各方好评,已然成为了天津科大充满活力的校园生活中心。
主馆内部
风雨操场内部
副馆内部
▎设计图纸
总平面图
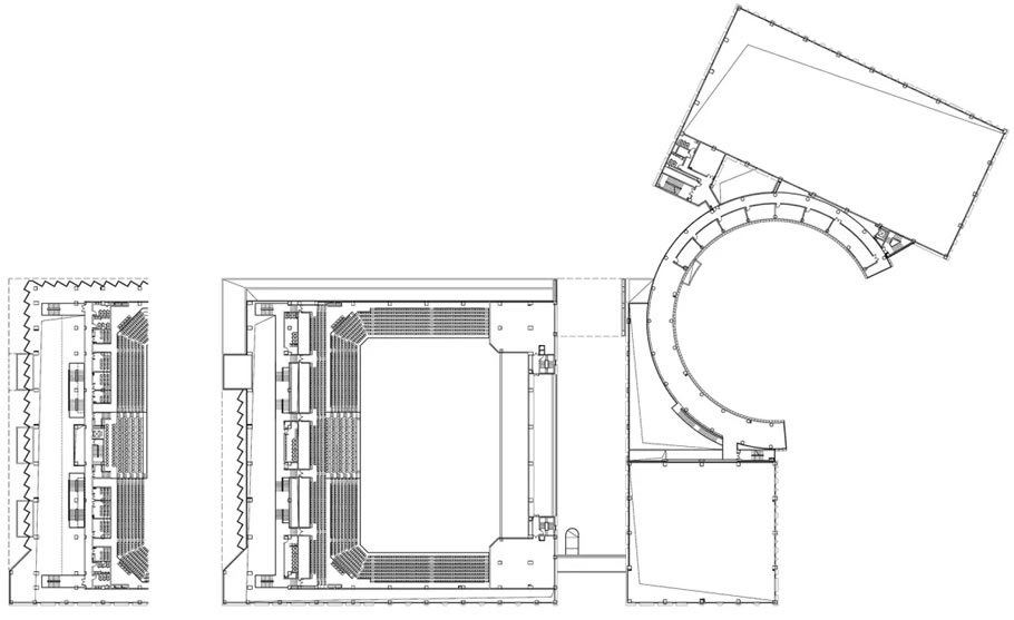
首层平面图
二层平面图
三层平面图
立面图1
立面图2
剖面图
剖立面图
▎项目信息
项目名称:天津科技大学体育馆
项目地点:天津市滨海新区
总用地面积:93069 ㎡
总建筑面积:24352 ㎡
设计时间:2013年
竣工时间:2017年
设计单位:华南理工大学建筑设计研究院有限公司
设计团队:
建筑设计|陶郅 陈子坚 陈煜彬 陈健生 涂悦 郭嘉 邓寿朋 郭钦恩
▎项目获奖
·获2019年度教育部优秀工程勘察设计奖(建筑)三等奖
客服
消息
收藏
下载
最近






























