查看完整案例


收藏

下载

翻译
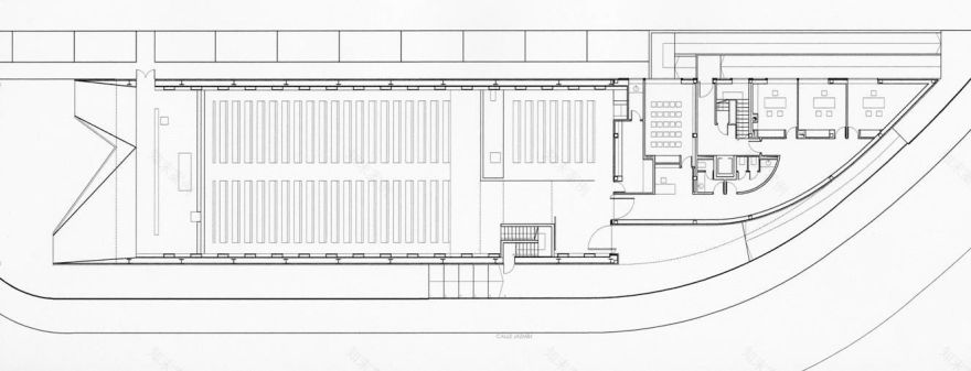
The Parish Church of Santa Monica at Rivas Vaciamadrid is located in a longitudinal plot of a newly established residential area and although the church has been the last work of the area, it was the first to be designed. The church needed to have a longitudinal scheme because it had to occupy the maximum plot and capacity; it also required a directional pattern even if it was not the most liturgically desired.The program besides needing a parish church, it was also considered necessary to have areas for management and catechesis and two housing projects for priests. Evidently the buget was tight but the end product came out to be a long lasting structure.
OLYMPUS DIGITAL CAMERA
All the early conditions given allowed for the emergence of the main idea and bring forth answers to all questions asked; turning limitations into great opportunities.The shape of the scheme determined the plans performance by allowing the work to be born from the edge, from point zero and along its border ends in an explosion of north-facing skylights. The sonorous piece shows a clear and categorical uniqueness of the building appropriate for the subject of holiness; to meet the light in where its essence is lacked of.
The sacred space desires of sacred art to fill the room, so all the sculptures and liturgical furnishings were designed and created by contemporary artists such as José Luis Sánchez, Javier Viver, José Manuel Cirino, Fernando Pagola, Javier Martinez and Jose Antonio Ramos.
OLYMPUS DIGITAL CAMERA
Project Info:
Architect : Vicens+Ramos
Location : Rivas-Vaciamadrid, Spain
Type : Religious
Status : Built
Year : 2008
Photography : estudio
OLYMPUS DIGITAL CAMERA
OLYMPUS DIGITAL CAMERA
OLYMPUS DIGITAL CAMERA
OLYMPUS DIGITAL CAMERA
OLYMPUS DIGITAL CAMERA
OLYMPUS DIGITAL CAMERA
OLYMPUS DIGITAL CAMERA
OLYMPUS DIGITAL CAMERA
OLYMPUS DIGITAL CAMERA
OLYMPUS DIGITAL CAMERA
OLYMPUS DIGITAL CAMERA
OLYMPUS DIGITAL CAMERA
OLYMPUS DIGITAL CAMERA
OLYMPUS DIGITAL CAMERA
OLYMPUS DIGITAL CAMERA
OLYMPUS DIGITAL CAMERA
OLYMPUS DIGITAL CAMERA
OLYMPUS DIGITAL CAMERA
OLYMPUS DIGITAL CAMERA
OLYMPUS DIGITAL CAMERA
OLYMPUS DIGITAL CAMERA
OLYMPUS DIGITAL CAMERA
OLYMPUS DIGITAL CAMERA
客服
消息
收藏
下载
最近


















































