查看完整案例


收藏

下载
晓里村旧城改造Xiaoli Village Old City Reconstruction
01/
PROJECT
+
OVERVIEW
项目及概况
晓里村旧城改造项目占地40225.55平方米,位于江宁东山新市区老城北片区,鼓山路以北,东山步行街以南,东新南路以西,紧临南京市江宁医院。
地块景色宜人,交通便捷,具备不可多得的人文资源。
△ 项目区位
社区整体规划坚持“生态性与持续性、整体性与多样性、功能性与人本性”的规划思想,并充分借鉴、引入国内外经典同质社区先进的规划设计理念,通过适度围合和开放、完善的公共配套设施、宜人的动静路网等规划手法,力求形成一个建筑高雅、环境宜人、配套完善的大型现代化社区。
02/
DESIGN
+
STRATEGY
设计与策略
项目采用“南北中轴线左右对称的”的布局方式:轴线往北是小区的景观步道,轴线再往北是小区的中心花园,最后这条轴线以最北面、最高9层的住宅楼作为轴线的终点。另外,在项目西面的街道布置沿街商铺和社区中心,一层商铺层高4.5米,开间8.4米,进深16.8米。
在交通的组织上采用人车分流的交通体系,车辆从小区的出入入口直接到地下室,地下室是环通的系统,车辆驶入车库后会有2个分开的出口,这样整个小区能够做到绝对的人车分流。
该项目的建筑风格遵循经典、含蓄、典雅、尊贵的审美取向,在建筑造型和建筑立面的处理上,运用了大量弧线语汇,营造出符合东方人审美情趣的建筑风格。在建筑外观上,设计了飘窗、景观阳台等,显得典雅而稳重。
考虑到所在地的历史文脉和传统的建筑色彩等因素,项目的建筑色彩追求与环境融合互补的效应,以端庄典雅的暖色调为主,力求展现历久弥新、经典永恒的建筑之美。在建筑材料上,以面砖和花岗岩为主。建筑外部的墙体和玻璃,采用环保、节能的玻璃材质。
△ 沿街商铺
该地块的户型以小户型为主,满足不同层次的客户的需求。户型的朝向、通风和景观力求均衡,在功能布局上,追求高品位住宅的精致、完美。
△ 小区内绿化
住宅的平面布局充分考虑住户使用的方便和舒适度,同时注意空间使用的经济性,减少不必要的空间浪费。住宅内部空间的配置上,满足国家对于居住类建筑内部使用空间的各种规范要求,尽可能的做到各种空间的全明和自然通风。
03/
TECHNICS
+
DRAWINGS
技术图纸
△ 总平面图
△ 1#标准层平面图
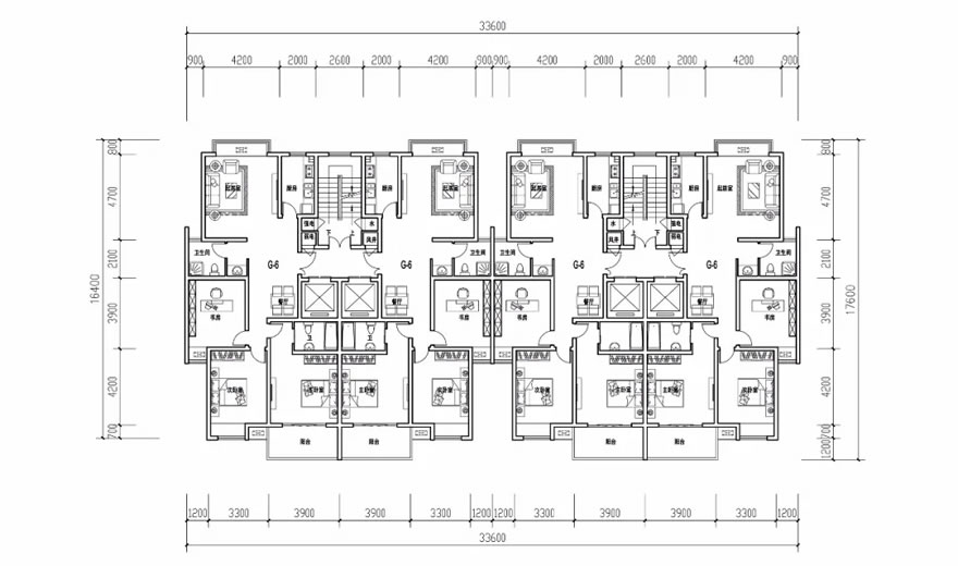
△ 2#标准层平面图
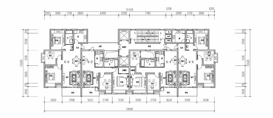
△ 3#标准层平面图
△ 4#标准层平面图
△ 1#商铺一层平面图
△ 1#地下一层平面图
△ 1#地下二层平面图
客服
消息
收藏
下载
最近
























