查看完整案例

收藏

下载

翻译
Tipología:Colegio e instituto Educación
Fecha:2022
Ciudad:Sant Fruitós (Barcelona)
País:España
Fotógrafo:Adrià Goula
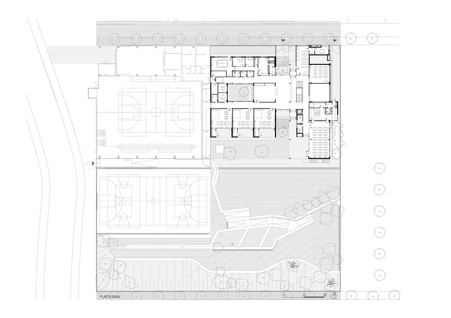
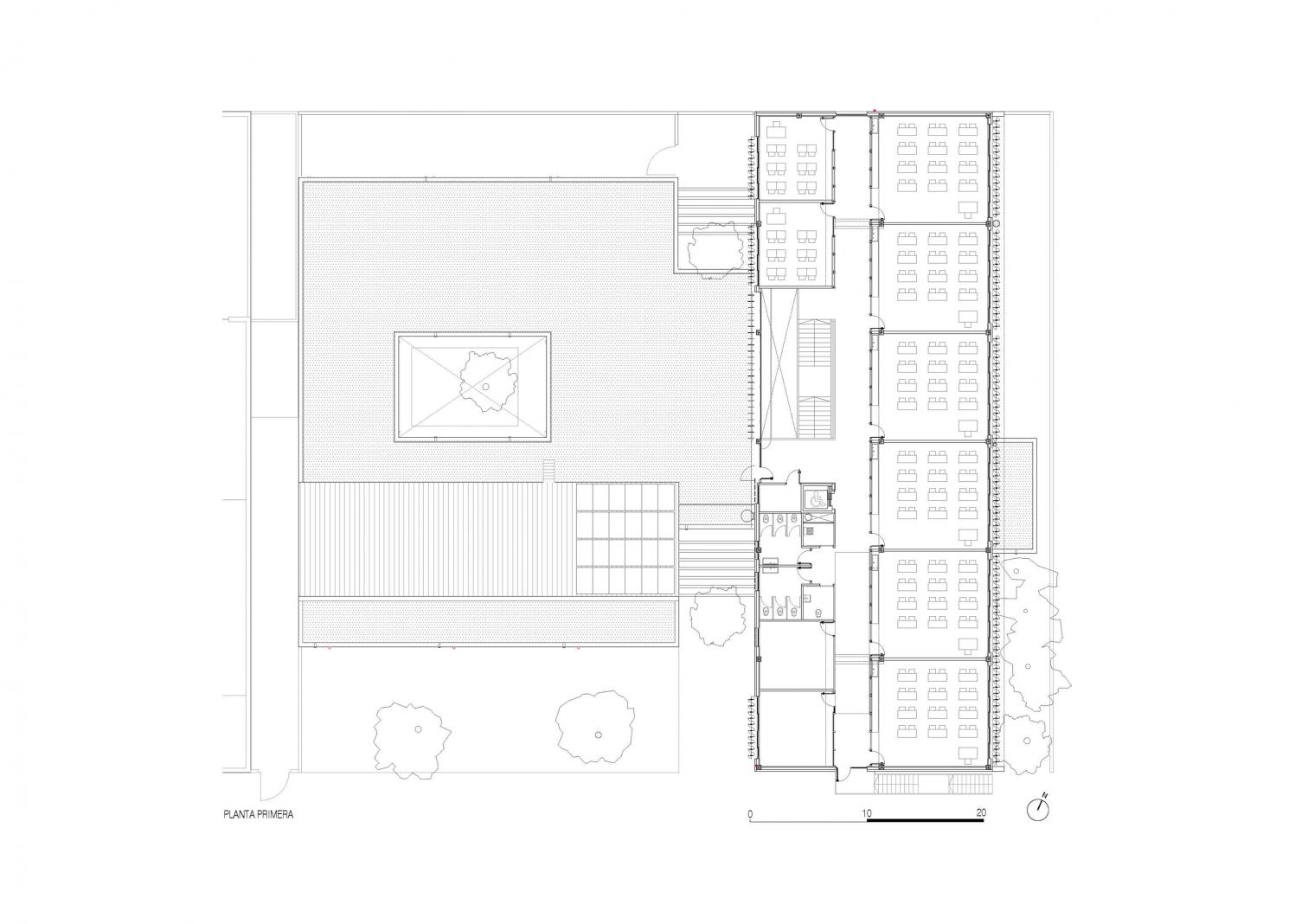
En el límite sur de Sant Fruitós, municipio catalán de la comarca del Bages, este colegio emerge al norte de la parcela y mira hacia la avenida de Sant Joan. El edificio busca integrar en esta fachada el conjunto escolar, incluyendo una pista deportiva y un gimnasio preexistentes. Entre el volumen de dos alturas de primaria y el de una planta del bloque de infantil se sitúa el pasaje de acceso, rompiendo la fachada continua de 91 metros y desde el que se entra al vestíbulo principal.
客服
消息
收藏
下载
最近



























