查看完整案例


收藏

下载
竹径云山位于杭州良渚文化村西南端,地块南临东西大道,群山环绕,环境优越,周边有五千亩山水,更有约10万方的矿坑公园,也是文化村极为稀缺的叠排+类独栋产品。设计传承良渚文化村精工品质,尊重原始地势,因地制宜,取法自然。
01 融居入景,揽景入宅
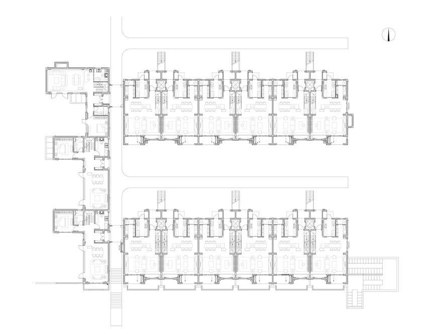
基地生态景观条件较为优越,地形变化丰富但条件复杂,设计采取“借远景、框中景,纳近景”的手法,将住宅分为大小、形态各不相同的组团进行布局,创造出“公共场所—邻里组团”两级空间模式,以120平米叠拼、180平米低层排屋的户型组合排列,创造出空间丰富,别具一格的邻里组团。
02 四阶台地,双层庭院
基地南低北高,南北高差12 米,根据地势高差,利用地下车库将地块均匀切分为四个不同标高的台地,台地边缘的产品地下室可以完全打开,二层叠排实际使用空间是三层。延山的类独栋地下室与顶层上下连通形成双层庭院,突破传统规划场所空间,创造出步移景异,层次丰富的视觉效果。
03 山为居,竹为邻
规划充分考虑基地周边与内部的绿体景观资源,将社区内外,自然人工的景观元素融为一炉,使绿化以绿带形式向社区内部空间延展。林荫掩映的竹径幽深处,庭院开阔;多维观景露台眺望,绵延起伏的群山近在咫尺;建筑形态交错变化、结合山体形成高差,创造出丰富多变的天际线形态。建筑强调对称性,体量干净利落,线脚细腻精致,整体清新典雅、舒适简约。
项目概况
项目地点:浙江杭州良渚文化村
建筑面积:74262平方米
开发单位:浙江南都置业有限公司
建筑设计:上海中房建筑设计有限公司
设计团队:黄涛、卞晖、岳晓、吴健
建筑摄影:梁山
客服
消息
收藏
下载
最近





















