查看完整案例


收藏

下载
七鲤皇冠假日酒店设计项目位于江西省赣州市,总面积约为54660㎡。当我们第一次走进赣州古城,犹如置身于宋城博物馆。这注定是一次不断理解场地环境文脉,并将宋代建筑风采融入现代酒店设计的难得经历。
尚恩设计,赞50
七鲤皇冠假日酒店将“龙真”、“砂环”、“水抱”、“穴的”、“屏护”、作为择址标准,注重建筑与环境的完美结合,力图创造和谐自然的度假空间,讲究地理生态性,结构布局追求“天人合一”,力图塑造“美景天成”的建筑美感。
设计团队从赣南客家围屋传统形态--“九厅十八井”图底拓扑,将其作为方案原生图底,整个建筑群以围合空间院落式处理,依托于赣南得天独厚的环境文脉,融入宋式美学、赣江文化以及客家文化、延续和传承赣南建筑风格和肌理。屋顶部分采用宋代建筑的举折比例,屋顶坡度增高,屋脊、屋角有起翘之势,给人“举之峻慢,折之圆和”之感。
九厅十八井图底拓扑
设计师希望通过呈现“江南宋城”,彰显赣州源远流长的历史及文化特征,同时加深建筑与周边环境之间的联系。
赣州完好保存了自宋代沿袭至今的三千多米的古城墙,而其所使用的铭文砖记载着近千年来赣州古城的兴衰、嬗变。设计师将宋城墙符号元素在酒店外立面上演绎,使其与周边景观产生空间上的互动。
▲宋城墙IP演绎
当我们第一次到现场踏勘时,落日余晖下,一对新人在连理枝的见证下共结连理,这样一幅画面在设计师脑海中被勾勒出来。我们决定保留场地中央的两株古樟树,并围绕它们建设婚礼草坪及婚礼教堂。
▲婚礼教堂
设计团队通过深入研究古画等,对悬鱼惹草、帘架挂落、屋脊鸱吻、横杆寻仗等多处建筑细部转译。我们大量使用斗拱结构,将装饰与结构结合,构饰一体。
设计师汲取宋式建筑中的精神性,回应传统精神与当代需求“适宜与自洽”,全日餐餐厅宛如一幅长轴生活画卷,将人带回清明上河图中的那个时代。
建筑、室内空间和园林自然的流动渗透、交相辉映:生境、画境、意境的升华交融,似一幅嵌于镜框中的立体画面,步移景异,引人一探究竟。
以厅屋、廊道、庭院来串联散布四周的客房、餐厅及会议厅,带给宾客地道的赣南村落体验。客房推窗即景、感受四时山水的不同。
▲室内效果图
面对紧凑的生产周期、成本控制与市场风险,项目伊始,设计团队全程进行配合。
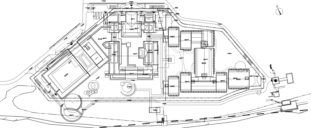
设计过程中对总图、造型进行把握,与室内、景观进行设计协同沟通,施工过程中对材料选择、现场巡查和控制,提供精确和直观的设计指导,力图保证项目的整体落地性。
▲设计图纸
“以文兴旅、以旅促商、商旅融合”,赣州七鲤古镇打出文商旅创新牌,打造赣南首席休憩度假综合体和首个商务文创示范区。11月17日,在赢商网举办的2022中国城市商业力高峰论坛上,赣州七鲤古镇荣获“2022年度文商旅标杆项目”奖项。
业主单位
中国交建 & 中青旅
项目地址
江西省赣州市七鲤镇
开业时间
2023年05月
建筑设计
尚恩(上海)建筑设计有限公司
设计团队
尚恩设计创研组
客服
消息
收藏
下载
最近








































