查看完整案例


收藏

下载

翻译
Designed by KMT Project Department, Sports Club Orange Fitness was built in Nizhnekamsk (240 thousand people), 1050 km east of Moscow. We, as general designers, abused our position, took advantage of the 2- month absence of the customer and launched a decorative facade into production without approval. In a month, a parametric design was designed and a task was developed for the CNC machine, installation was carried out in 2 weeks. Good luck was on our side and everything went according to plan.
Photography By Ravil Safiullin
Upon return, the customer was furious, stopped construction, demanded an explanation and options for how to fix it. But it was more expensive to fix than to finish the plan. As a result, the rise in prices amounted to 2.8% of the total construction cost compared to traditional rectangular composite panels. Silver award of «Zodchestvo 2016» in the nomination «The best works» convinced the client that his risk paid off and he received much more than just a building.
Photography By Ravil Safiullin
Today, Orange Fitness Sports Club has the maximum number of positive Google reviews, while we continue to work with the same developer and think how to convince to apply the newest textile facade on the next structure. When will he have a business trip?
Photography By Ravil Safiullin
Project Info:
Architects: KMT Project Department
Location: Russia
Area: 3350.0 m²
Year: 2016
Photographs: Ravil Safiullin
Manufacturers: Rhino
Project Name: Orange Fitness Gym
Photography By Ravil Safiullin
Photography By Ravil Safiullin
Photography By Ravil Safiullin
Photography By Ravil Safiullin
Photography By Ravil Safiullin
Photography By Ravil Safiullin
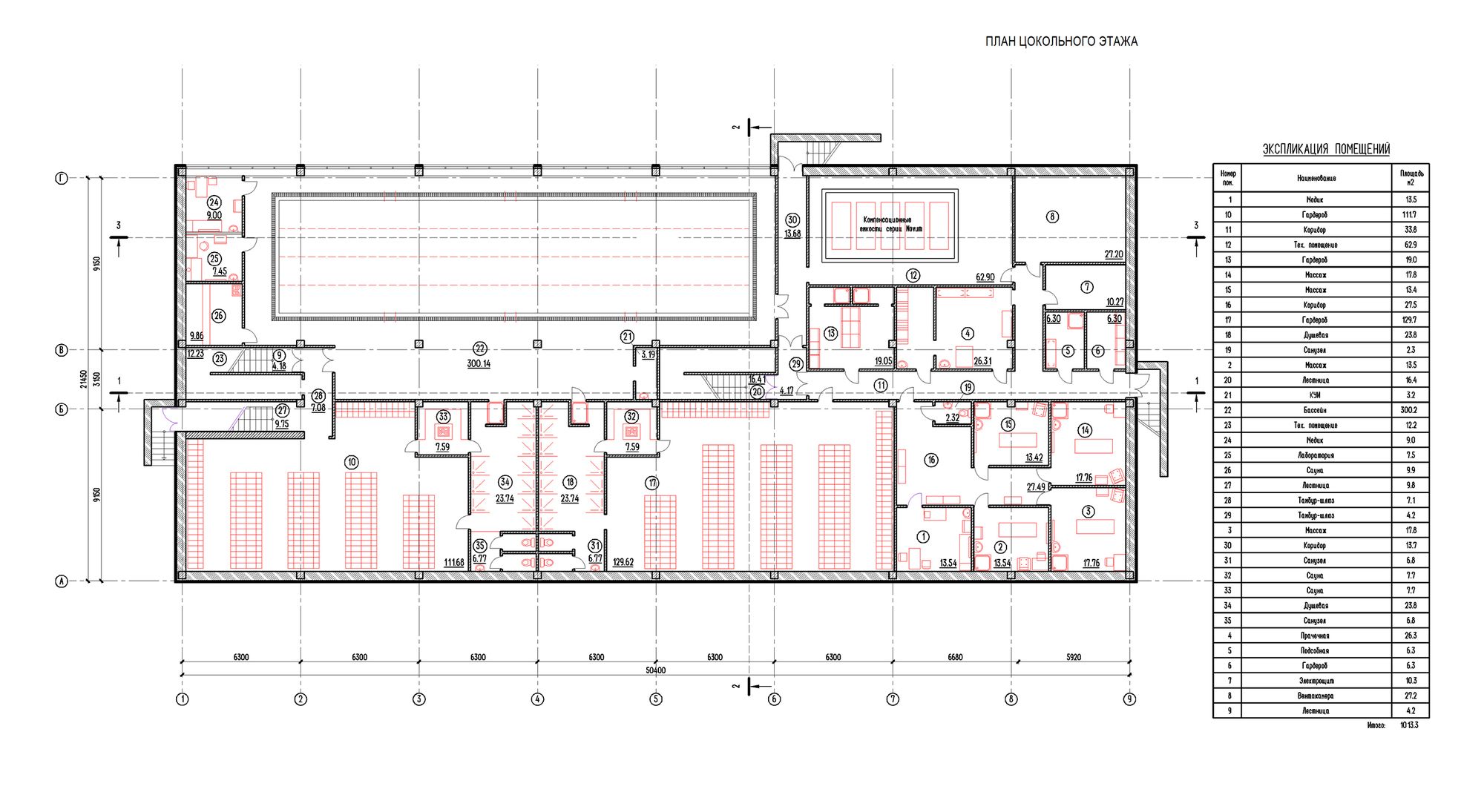
Floor Plan
Render
Section
Floor Plans
Floor Plan
Exterior Structure
Structure Detail
Elevations
客服
消息
收藏
下载
最近
















