查看完整案例


收藏

下载

翻译
Telus Garden | Office Of Mcfarlane Biggar Architects + Designers Inc.
To emphasize its status as a leading organization in the world of telecommunications that is also civically, culturally and environmentally minded, TELUS collaborated with Westbank to transform an entire city block of prime downtown Vancouver real estate into an inspiring workplace and a welcoming destination for the downtown community.
photography by © Ema Peter
The ambitious one-million-square-foot, $750 million development designed by Henriquez Architects comprises a 24- floor office tower and a 53- floor residential tower, with nine floors dedicated to TELUS’ national headquarters. Office of mcfarlane biggar architects + designers (omb) was hired to create a thoroughly modern interior t-out for the company’s 1000 employee office that would reflect its brand through an environment that would be understated and functional, warm and inviting and celebrating of its locale—Canada’s West Coast landscape. They wanted the interiors to underscore TELUS’ company values (innovation, teamwork, growth, change and opportunity); and also demonstrate the brand’s stature through the most state-of the-art workplace technologies.
Creating a distinct sense of place, omb imbued the complex with local materials, particularly natural toned wood, interior gardens and art. Setting the overall tone for the complex, the welcoming, wood-clad lobby/reception area was framed with an omb- designed screen of abstracted leaf petals derived from TELUS branding, compressing the space and creating a sense of release in the multi-storey sky lobby garden.
photography by © Ema Peter
Inserted into this double height four storey space, floating “skybox meeting rooms,” an architectural first in Vancouver, increase programming capacity, link and animate every floor, merge the public and private realms and give users a memorable connection to the city. These oat over raised gardens planted with live trees and shrubs – recalling many offices of the post-modern period, but not in vogue for many years.
The design team initiated and curated a comprehensive, customized art program to ensure the integration of art, interior design and client vision from the earliest stages. Founded on a nature-based theme – ‘Materials of Meaning’, the artworks, all by Canadian artists, express at different levels of abstraction the role of copper, wood and textiles as means to transfer knowledge, celebrate history and connect people.
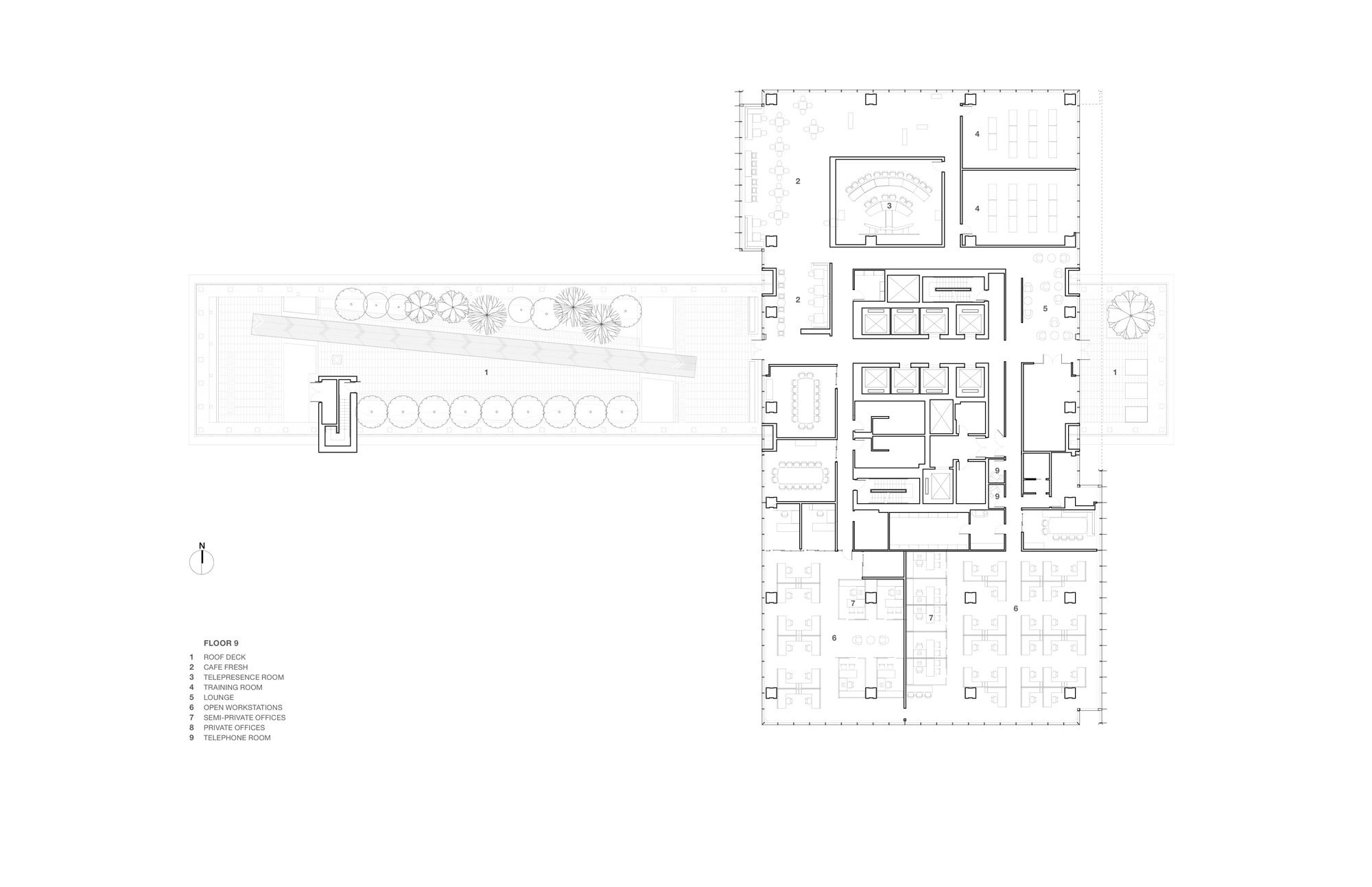
Embracing TELUS’ combination of resident and mobile workers, omb fitted the headquarters with varied meeting spaces to foster different work styles, all fully yet discreetly wired. Offering differing levels of interaction along with acoustic and visual privacy, a variety of collaborative areas were constructed. The varied workspaces include standing touchdown (mobile) workstations along with formal meeting rooms, telepresence conference facilities and various lounges, designed to promote impromptu collaborations and teamwork.
photography by © Ema Peter
Interior gardens and planted roof decks also function as meeting places and provide a unique connection of workspace to the exterior landscape with dramatic views of the city and its natural mountain and ocean context.
Special amenities, such as Café Fresh for staff and an extensive kitchen/lounge foster an of ce environment that values team building. Various spaces illustrate TELUS’ dynamic and multifaceted approach to telecommunications, including The Innovation Centre, where development teams test and showcase nascent technologies, ideas and concepts, as well as the TELUS Studios, where production teams develop branded documentary shorts in house.
With great attention to quality of space, light, views, art, furnishings and finishes, from the urban scale to the individual elements, omb crafted interiors that combine a sense of importance and modesty, timelessness and flexibility, capturing the essence of TELUS’ brand and leadership in Canadian and international telecommunications.
photography by © Andrew Latreille
Project Info
Architects: Office of Mcfarlane Biggar Architects + Designers Inc.
Location: Vancouver, Canada
Principal-in-Charge: Michelle Biggar
Supporting Principal: Steve McFarlane
Manufacturers: Benjamin Moore, Formica, Philips Lighting
Project Associate: Tracey MacTavish
Area: 156000.0 ft2
Year: 2015
Type: Office Building
Photographs: Andrew Latreille, Ema Peter
photography by © Ema Peter
photography by © Ema Peter
photography by © Andrew Latreille
photography by © Andrew Latreillephotography by © Andrew Latreille
photography by © Andrew Latreille
photography by © Andrew Latreille
photography by © Ema Peter
photography by © Andrew Latreille
photography by © Ema Peter
photography by © Andrew Latreille
photography by © Ema Peter
photography by © Ema Peter
photography by © Andrew Latreille
photography by © Ema Peter
photography by © Ema Peter
photography by © Ema Peter
photography by © Ema Peter
photography by © Andrew Latreille
photography by © Andrew Latreille
photography by © Ema Peter
photography by © Ema Peter
photography by © Andrew Latreille
Plan
Plan
Plan
Plan
客服
消息
收藏
下载
最近




























