查看完整案例

收藏

下载

翻译
Tipología:Centro deportivo Deporte
Material:Metal
Fecha:2021
Ciudad:Alcobendas (Madrid)
País:España
Fotógrafo:Luis Asín
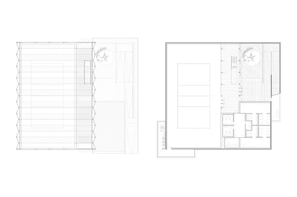
El Julia Powell Sports Hall es un espacio deportivo y polivalente que forma parte del campus educativo del Runnymede College de Alcobendas. Como punto de partida se aprovecha una cimentación existente: el sótano de una construcción demolida sobre rasante, pero delimitada bajo rasante por un muro de contención que forma una figura cuadrada de 30 metros de lado. El nuevo pabellón se sitúa en una cota bajo rasante, dejando ver desde el exterior solo una parte del volumen construido, la cual está envuelta con policarbonato y chapa galvanizada perforada. El edificio parte de la industrialización y el montaje en seco de sistemas estructurales y envolventes metálicas. La estructura está configurada como un entramado de barras metálicas, formando una superficie continua pero quebrada para mayor rigidez y arriostramiento.
客服
消息
收藏
下载
最近














