查看完整案例

收藏

下载

翻译
Tipología:Biblioteca Campus universitario Cultura / Ocio
Material:Aluminio
Fecha:2021
Ciudad:Algeciras
País:España
Fotógrafo:Javier Orive
Marca:Strugal Lamp Mapei
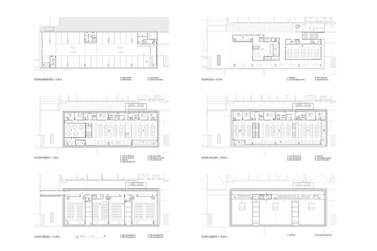
Dentro del plan para modernizar el Campus Bahía de Algeciras de la Universidad de Cádiz (UCA), se construye esta biblioteca envuelta con una piel abstracta de aluminio perforado, que disipa el sobrecalentamiento solar. Más allá de un servicio universitario exclusivo, el equipamiento urbano contiene una sala multiusos disponible para los ciudadanos. El volumen está fragmentado en bandejas horizontales que permiten leer la organización interna de tres niveles y generar una escala apropiada. Dada la fachada ciega por su condición de medianera se establecen unos lucernarios a modo de linternas en las cajas de escaleras por los que accede la luz natural que ilumina las salas de lectura. La biblioteca dispone de espacios de relación y socialización, así como de salas de trabajo y reuniones. La edificación está concebida como una arquitectura flexible para modificar su uso con ligeras adaptaciones, a partir de un sistema estructural de grandes luces, compuesto por pilares apantallados de hormigón y forjados reticulares.
客服
消息
收藏
下载
最近

















