查看完整案例

收藏

下载

翻译
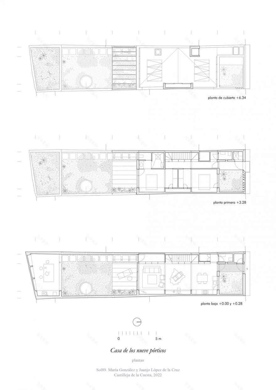
El solar largo y estrecho donde se construye esta vivienda es el resultado de las antiguas parcelaciones agrícolas del municipio de Castilleja de la Cuesta, situado en la comarca sevillana del Aljarafe. Estas proporciones definen un espacio continuo ritmado por la repetición de pórticos equidistantes, donde las crujías se construyen en una o dos plantas o se ahuecan para generar patios. La secuencia comienza por un primer patio que matiza las relaciones con la calle, y finaliza con un pabellón con una cubierta de menor altura que alberga un taller y una cocina exterior.
El pórtico tipo retranquea los apoyos respecto a las medianeras para evitar conflictos con los muros de carga de las casas vecinas, y el espacio resultante entre esta línea estructural y las lindes longitudinales se ocupa con el equipamiento, y los espacios técnicos y de almacenaje, generando dos bandas laterales desiguales en los límites de la vivienda. Al exterior, la casa se muestra a la calle como una construcción masiva y blanca que reinterpreta la tradición constructiva local a través de diferentes elementos: una cornisa-visera, un friso, un balcón que avanza sobre la calle, el muro calado y el postigo de la puerta desde el que atisbar el patio-zaguán.
客服
消息
收藏
下载
最近


















