查看完整案例

收藏

下载

翻译
Tipología:Centro cultural Cultura / Ocio
Material:Hormigón
Fecha:2022
Ciudad:Mérida (Yucatán)
País:México
Fotógrafo:Jaime Navarro
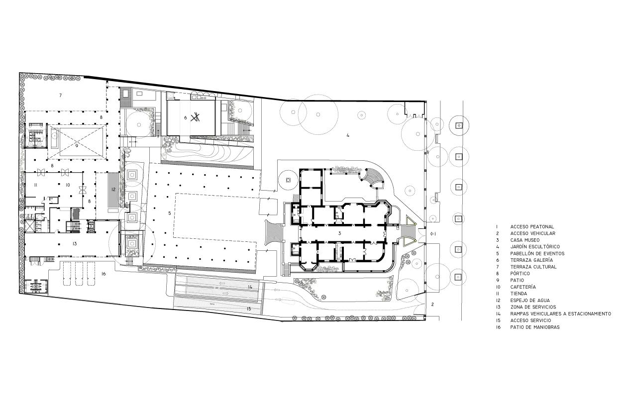
La Quinta Montes Molina fue construida en 1906 en Mérida, la capital yucateca. Un siglo después se abrió al público como casa museo. En 2015, la firma fundada por Gustavo Carmona y Lisa Beltrán, Materia, levantó un
a la Quinta, proyecto que resultó ganador en la Bienal de Arquitectura de la Ciudad de México en el mismo año, en la categoría de Cultura. Debido a la afluencia de visitantes, en 2016 surgió la necesidad de construir un aparcamiento y fue cuando se consideró un proyecto más ambicioso: un centro cultural.
Concebido como una serie de pabellones tejidos por umbrales, la nueva construcción está emplazada en la propiedad, detrás de una hilera de árboles centenarios que actúa como fachada vegetal. Sus pórticos generan recorridos y envuelven los espacios públicos exteriores. Las columnas y los cerramientos enmarcan vistas hacia la casa, los jardines y el pabellón, integrando visualmente todos los elementos. El centro cultural alberga espacios para eventos al aire libre, una cafetería-librería y áreas de servicios y cocinas para los banquetes que se realicen en el pabellón. En la planta alta se añaden dos terrazas, oficinas administrativas y una sala de usos múltiples. La galería de arte principal se localiza en el jardín de la Quinta, como elemento de transición entre los espacios que ya existían —la casa y el pabellón— y los nuevos. De escala amable, el proyecto es una reinterpretación contemporánea de la casa y sus ornamentos, realizada con elementos prefabricados de hormigón que permitieron reducir los tiempos de construcción y los costes económicos.
客服
消息
收藏
下载
最近














