查看完整案例

收藏

下载

翻译
Material:Cerámico Ladrillo
Fecha:2022
Ciudad:Barcelona
País:España
Fotógrafo:Simón García
Marca:Pladur LafargeHolcim
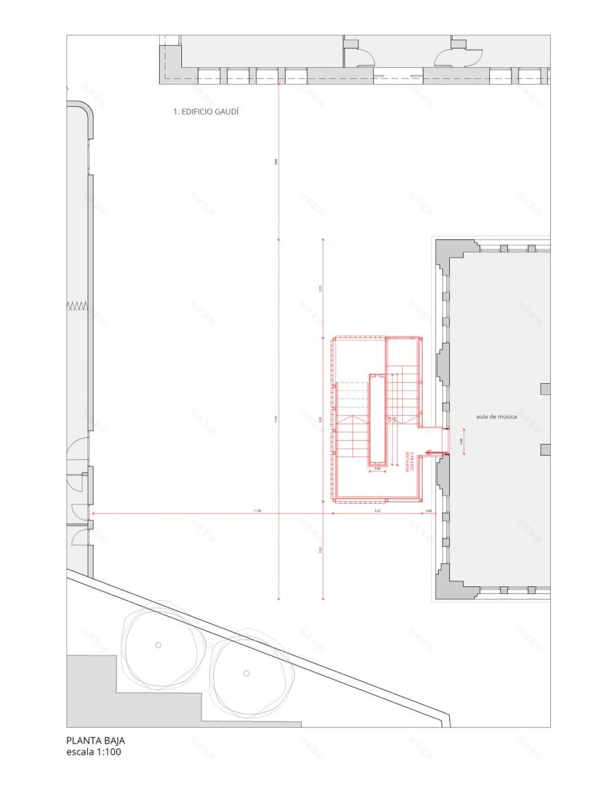
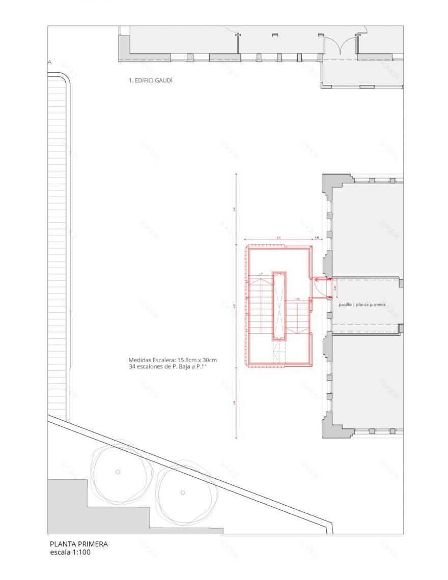
Si finalmente ascendiera a los altares, Gaudí se encontraría en la Iglesia triunfante con su amigo Enrique de Ossó, padre fundador de la orden teresiana y hombre con el acertado gusto de confiar el diseño de su colegio-convento a un renovador además de pío arquitecto. Gaudí asumió de forma libre el gótico levantino y con lucidez violletiana levantó el primer edificio de un conjunto educativo que todavía hoy sigue creciendo. La necesidad de adaptar estas instalaciones a la normativa actual exigía la construcción de una escalera de incendios en un pabellón junto al edificio original, cuyo ritmo y materialidad emula un cajón metálico separado de la fachada pero respetuoso con su composición, y revestido con un celosía de tradicional aparejo cerámico.
客服
消息
收藏
下载
最近

















