查看完整案例

收藏

下载

翻译
Tipología:Casa Hotel Vivienda
Material:Madera
Fecha:2021
Ciudad:Paradinha (Alvarenga)
País:Portugal
Fotógrafo:Fernando Guerra FG+SG
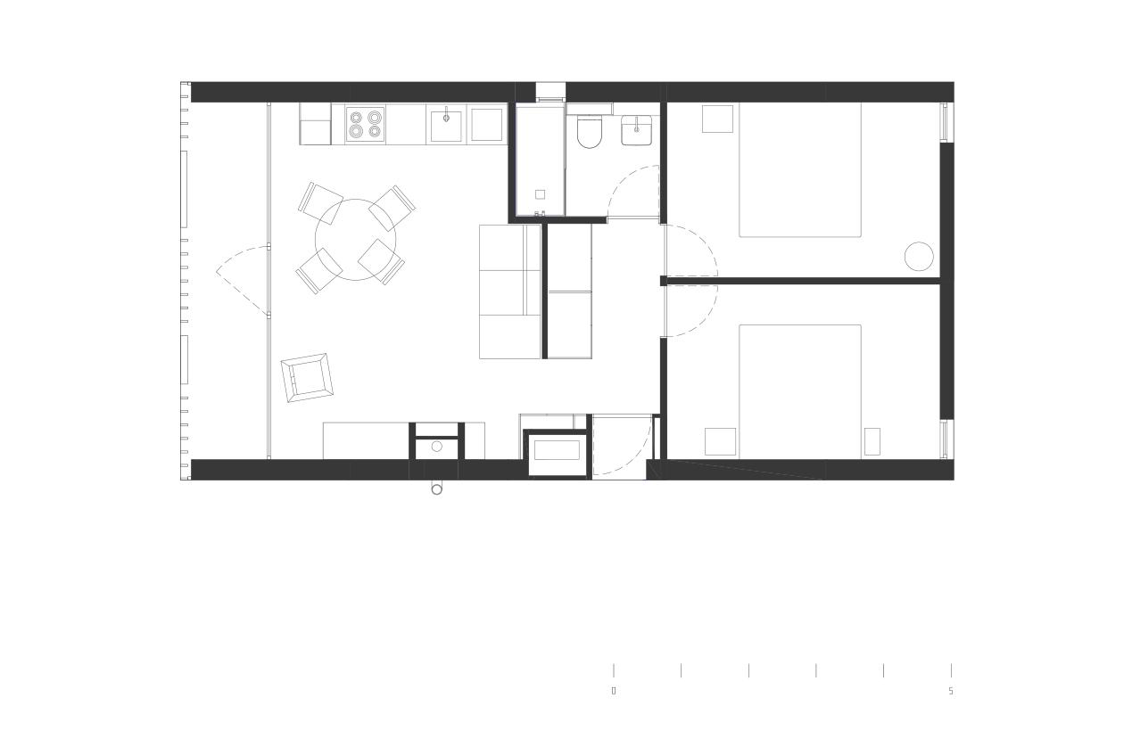
En una remota parcela de la aldea portuguesa de Paradinha (Alvarenga), en el distrito de Aveiro, se distribuyen según la configuración natural del terreno once cabañas, colocadas cuidadosamente alrededor de los árboles existentes. Dado el difícil acceso al bosque se opta por simplificar el proceso de construcción a través de estructuras prefabricadas. Combinando hormigón y madera, el conjunto incluye cuatro tipologías diferentes, que oscilan entre los 28 y los 58 metros cuadrados. Las instalaciones técnicas (agua, electricidad y climatización) en cada casa están concentradas en un módulo estandarizado que permitió acelerar el ensamblaje.
El encargo inicial fue distribuir varias habitaciones sobre la parcela para el Hotel Syntony. Sin embargo, el estudio de Oporto Summary, fundado por Samuel Gonçalves, propuso además la construcción de casas pequeñas para que algunas de ellas pudieran funcionar como viviendas a tiempo completo. La mezcla de estos dos programas diferentes —alojamientos turísticos y viviendas— se garantiza que el complejo pueda estar habitado todo el año, favoreciendo el mantenimiento y la seguridad de la zona.
客服
消息
收藏
下载
最近





































