查看完整案例

收藏

下载

翻译
Tipología:Colectiva Vivienda
Ciudad:Palma de Mallorca
País:España
Fotógrafo:Juan Rodríguez
El edificio está situado en la denominada Fachada Marítima Nou Levante, junto al Palacio de Congresos. La transformación urbanística de esta área, según el proyecto de Joan Busquets, buscaba paliar la falta de vivienda asequible en Palma. Paradójicamente, su buena ubicación, junto a la playa de Portixol, y las vicisitudes legales y económicas (la mayor parte de las parcelas proceden de procesos derivados de la última crisis financiera) han dificultado la consecución de ese objetivo social, así como el desarrollo de una actuación arquitectónica más unitaria, que tuviera en cuenta el contexto de la isla y de la ciudad, y que fuera aplicable a todas las unidades.
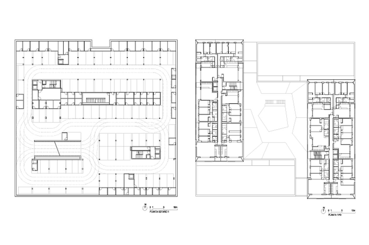
La ordenación de la parcela, un cuadrado de 58 metros de lado, viene estructurada por el propio plan de Busquets, que evita crear un frente elevado en la orientación norte-sur —hacia el mar—, y concentra la edificación más elevada en la este-oeste. El resultado es una macla entre los volúmenes del este y oeste, de siete plantas, y los del norte y sur, de sólo dos. Teniendo en cuenta los vientos dominantes y el soleamiento, esta disposición resulta muy apropiada y permite una gran variedad tipológica y formal.
La lógica derivada del plano urbano y la voluntad de establecer un diálogo con la construcción local inspiran una solución que busca en la sencillez su mayor atractivo. La claridad volumétrica huyendo de elementos superfluos en fachada; la utilización de materiales sencillos como el enfoscado texturado muy común en la isla; y el uso de elementos tradicionales que aseguran un buen oscurecimiento y ventilación son los únicos recursos de una propuesta centrada en dirigir los escasos recursos más a la calidad de los elementos constructivos que a su abundancia.
En la concepción del conjunto ocupa un lugar destacado el espacio central, a través del cual se accede a todas las viviendas. Esta pequeña plaza interior, a la que se accede desde un único punto en la fachada sur, es un espacio para el encuentro y el juego que garantiza una óptima transición entre los usos más públicos y los privados. Por su parte, las terrazas corridas permiten la lectura única requerida por los objetivos formales. Un enrejado corredero, pintado de un color que es síntesis del azul y el verde de la isla, protege las fachadas interiores, muy vidriadas, del exceso de radiación solar. Las cubiertas, ajardinadas y transitables, completan el conjunto funcional colectivo. En términos constructivos, la actuación se ha guiado por la sencillez en detalles y materiales y por su disposición según la más estricta lógica funcional y de mantenimiento. Ejemplo de ello es el zócalo de chapa galvanizada que recorre todo el perímetro exterior, evitando que el enfoscado toque el suelo.
客服
消息
收藏
下载
最近






























