查看完整案例

收藏

下载

翻译
Material:Madera
Fecha:2021
Ciudad:Barcelona
País:España
Marca:Egoin
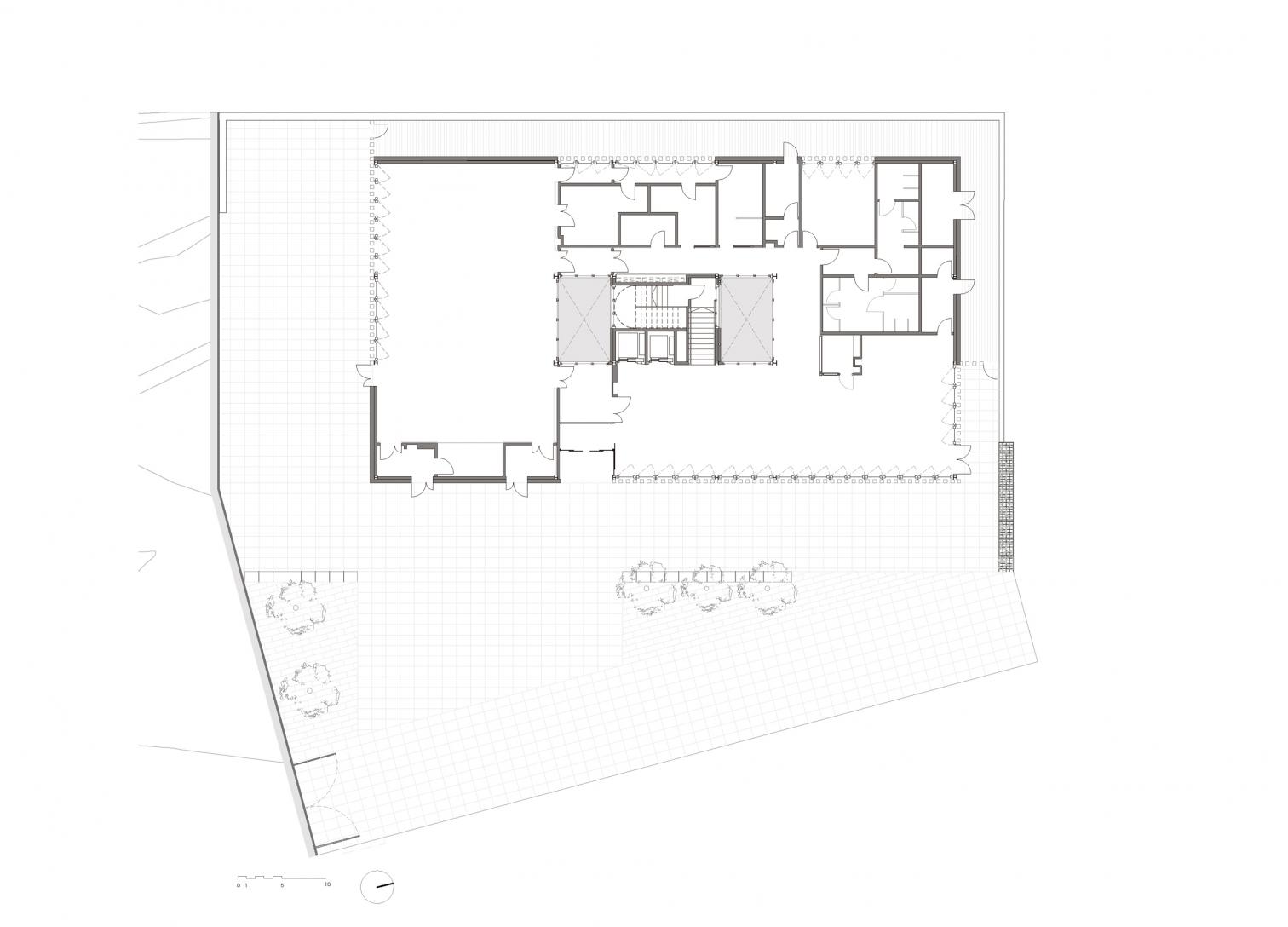
El Centro de Vida Comunitaria de Trinitat Vella en Barcelona es un complejo multifuncional y el primer edificio construido de una serie de equipamientos comunitarios para los distritos de Sant Andreu y Nou Barris, que se levantarán en los próximos años, incluyendo viviendas dotacionales y residencias para jóvenes y personas mayores. Obra de la firma catalana haz arquitectura, liderada por Manuel Sánchez-Villanueva y Carol Beuter, esta construcción realizada en seco acoge espacios para distintos servicios sociales y asociaciones del barrio, organizados en torno a dos patios cubiertos que proporcionan luz y ventilación.
Se levantó un esqueleto metálico de jácenas y pilares, que trabaja en colaboración con un sistema portante de paneles y techos de madera contralaminada CLT de pino radiata, que arriostran y dan estabilidad al conjunto. Los revestimientos interiores se han limitado a zonas de zócalo con contrachapado de madera, dejando vista la estructura de CLT. Para contrarrestar la poca inercia térmica de la construcción en madera, el sistema de ventilación aprovecha la inercia del terreno, colocando los tubos de aire limpio (fresco en verano y cálido en invierno) en el desmonte de la ladera. Al situarse en el subsuelo, el aire que circula por los tubos se calienta y se lanza dentro de los dos patios cubiertos que funcionan como grandes conductores. Los cerramientos y las puertas de los pasillos incorporan un diseño específico que permite el paso al aire de retorno hasta unas chimeneas centrales que lo llevan a la sala de máquinas de cubierta, donde se sitúan placas fotovoltaicas.
客服
消息
收藏
下载
最近















