查看完整案例

收藏

下载

翻译
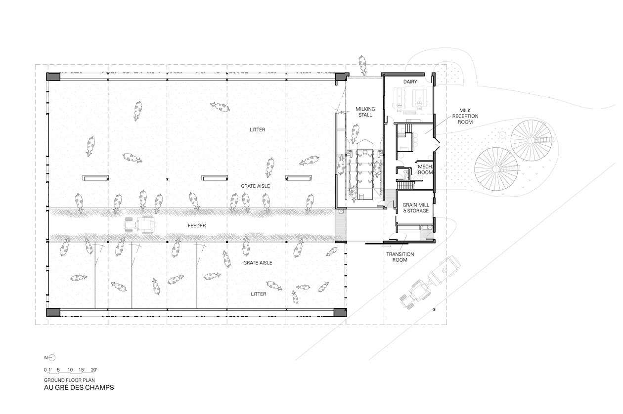
Crítica con las prácticas intensivas, una familia de larga tradición ganadera apuesta por la elaboración artesanal de quesos en un entorno agradable para las vacas y afín al paisaje.
El nuevo establo renuncia a la apariencia de caja industrializada opaca integrándose entre las otras construcciones de la granja con una cubierta de chapa a dos aguas y una envoltura translúcida de seductora materialidad.
Los cerramientos de policarbonato, en gran medida practicables para favorecer la ventilación, dejan vista la estructura de madera contralaminada y bañan el interior de luz natural para mayor confort de animales y trabajadores.
客服
消息
收藏
下载
最近




























