查看完整案例

收藏

下载

翻译
Tipología:Bombero / policía / emergencia Estación de bomberos
Material:Madera
Fecha:2020
Ciudad:Moyá (Barcelona)
País:España
Fotógrafo:Adrià Goula
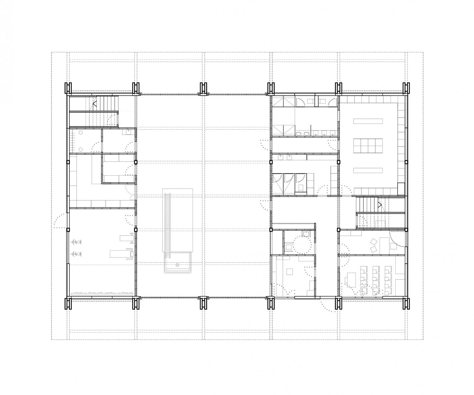
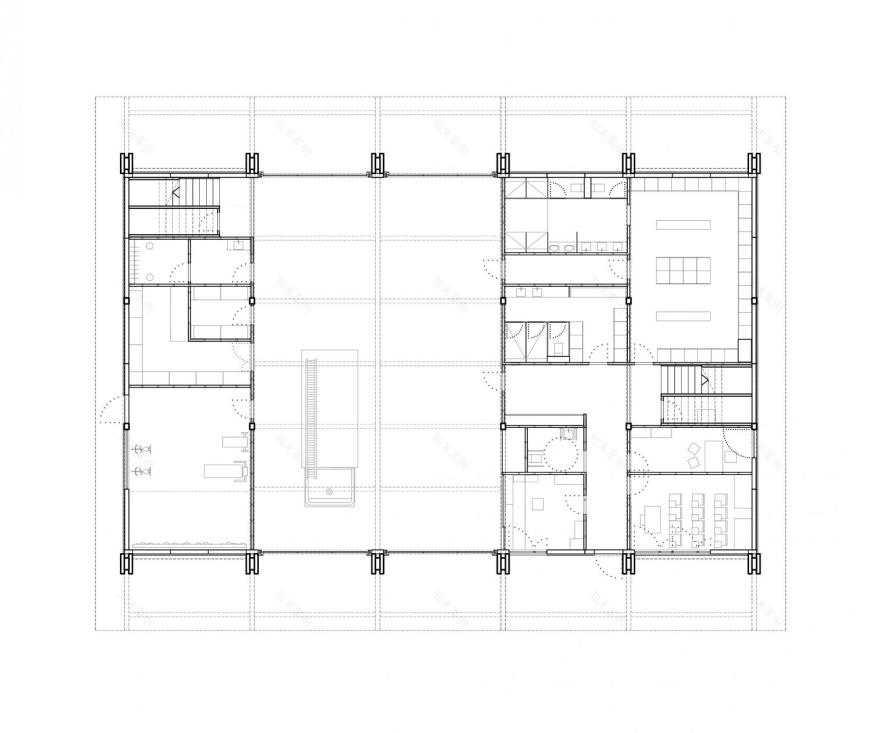
El municipio de Moià, a unos 60 kilómetros al norte de Barcelona, necesitaba renovar con urgencia las instalaciones del parque de bomberos, que presentaban graves patologías. Para ello se convocó, en el año 2016, un concurso en el que se demandaba una obra industrializada que se pudiera ejecutar con la mayor rapidez. El proyecto ganador proponía una construcción ligera de elementos modulares de madera con una escala y definición de los pórticos capaz de conferir al edificio un carácter monumental que le permitiera convertirse en la puerta de entrada a la pequeña localidad.
El edificio propuesto forma un volumen limpio, con una materialidad sencilla: un único material y un sistema reproducible y ampliable. Una estructura repetitiva, modular y constante garantiza un abaratamiento de soluciones constructivas y una fácil ejecución en obra, con la posibilidad de materializarse a través de procedimientos industrializados. La envolvente se caracteriza por una materialidad ligera como respuesta eficiente a los requerimientos térmicos, estructurales, acústicos y de mantenimiento.
Compacto y austero, el nuevo edificio otorga protagonismo a la estructura como expresión de su presencia en el territorio. Una secuencia de pórticos perpendiculares a la calle y al paisaje proyectan unos vuelos asimétricos que potencian la transparencia, construyendo un plano a siete metros del suelo que parece flotar sobre los campos. Un elemento neutro y modulable que permitirá fácilmente futuras ampliaciones.
La doble escala de un pórtico embebido en otro pórtico, a modo de muñeca rusa, resuelve la convivencia entre la dimensión más doméstica que requieren los bomberos que habitan el parque y la gran magnitud de los camiones que habitan la cochera: un solo gesto que sistematiza y aúna.
La industrialización demandada para reducir los plazos de construcción se resuelve mediante elementos fabricados en taller que se ensamblan en obra. Un esqueleto de madera laminada conforma los pilares dobles —para otorgar esbeltez— y las vigas empresilladas por dichos pilares. Unos paneles sándwich de madera modulan la fachada en un juego de damero que matiza la relación entre interior y exterior.
La construcción se basa en la eficiencia de los materiales: no se producen residuos debido a su industrialización y se fija CO2 mediante el uso de la madera, símbolo material del siglo XXI y elección idónea debido a su baja conductividad —comparada, por ejemplo, con el acero—. El material es estructura, protección y envolvente al mismo tiempo.
客服
消息
收藏
下载
最近















