查看完整案例

收藏

下载

翻译
Tipología:Universidad Escuela especializada Educación
Material:Madera
Fecha:2020
Ciudad:Gifu
País:Japón
Fotógrafo:Kenya Chiba
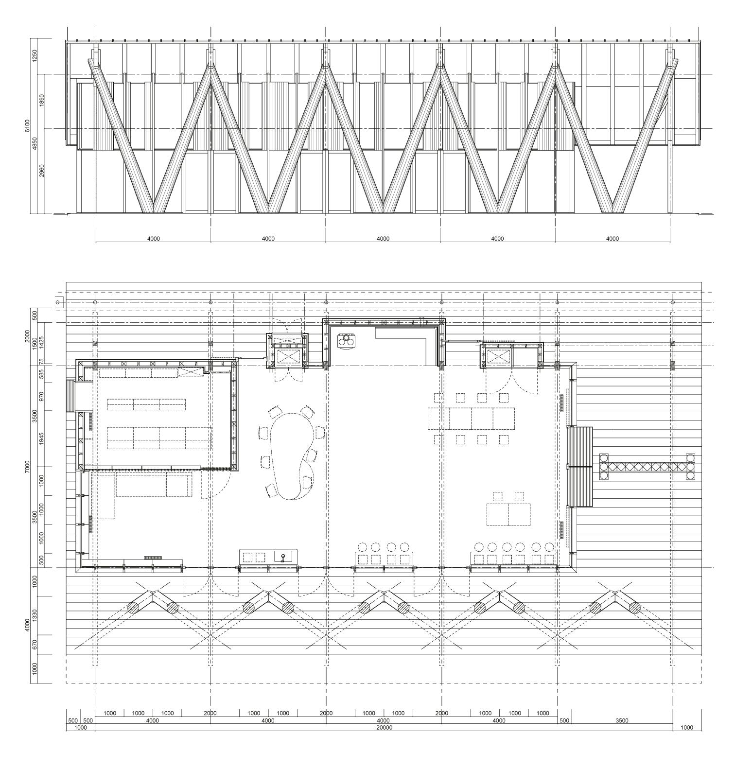
Una nave diáfana con una pronunciada cubierta a un agua alberga una escuela de estudios ambientales cuya construcción constituye en sí misma toda una lección de sostenibilidad.
El empleo mesurado de los recursos forestales caracteriza la estructura de pilares en V del edificio, compuesta por troncos de ciprés cortados por los estudiantes del centro, y completada con acabados y carpinterías de cedro.
客服
消息
收藏
下载
最近









