查看完整案例

收藏

下载

翻译
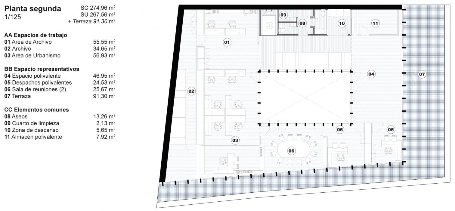
Seleccionado entre 29 propuestas, el proyecto Pati-Oh! de los madrileños NULA.STUDIO —Laia Cervelló y Miguel Fernández-Galiano—, realizado junto a los coruñeses Fernández Carballada y Asociados (FCA), resultó ganador del concurso público convocado por el Ayuntamiento de Foios para renovar y ampliar la casa consistorial de esta localidad valenciana. La propuesta conserva la fachada original del edificio e introduce un nuevo volumen con una banda de servicios compacta en su medianera y un gran patio central, que es a la vez continuación de la plaza del pueblo y elemento bioclimático. La cubierta del nuevo volumen y el nuevo acceso lateral al salón de actos están revestidos de teja azul vidriada como reflejo de la cúpula de la vecina parroquia de la Asunción.
Dado el mal estado de la estructura original se toma la decisión de demoler todo el interior del edificio existente, únicamente conservando la fachada original, que forma parte de la memoria colectiva del pueblo desde 1945. Esta decisión permite una nueva configuración programática adaptada a las nuevas necesidades. En el nuevo volumen un patio central organiza el programa, y genera un diálogo entre la plaza exterior y la plaza interior con la voluntad de desdibujar los límites de lo público. Su funcionamiento como elemento bioclimático cobra más sentido ante el gran fondo de parcela existente.
La extensión del muro medianero en forma de banda de instalaciones incorpora una planta adicional que permite el aprovechamiento de la terraza superior para eventos. La nueva entrada lateral sirve de rótula entre dos programas que se pueden independizar, permitiendo un uso privado del salón de actos y zonas comunes sin necesidad de regirse por los horarios de la administración.
客服
消息
收藏
下载
最近
















