查看完整案例

收藏

下载

翻译
Tipología:Torre
Fecha:2013
Ciudad:Caen
País:Francia
Fotógrafo:Jesús Granada Filip Dujardin Maxime Delvaux
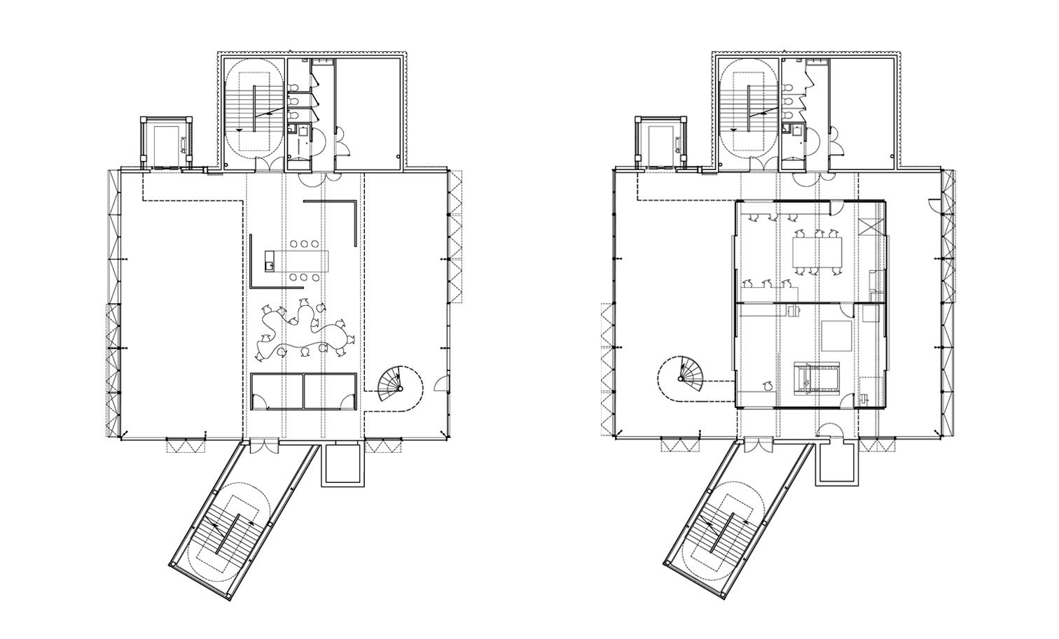
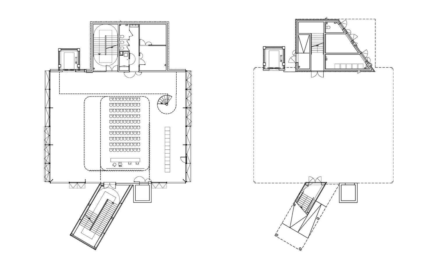
Una torre de diáfanos niveles hace posible el aprovechamiento óptimo de un solar pequeño desde el que un ‘fab lab’ busca sumarse a la revitalización del área portuaria de Caen.
La indefinición del programa en las bases del proyecto dio lugar a una serie de espacios de libre configuración superpuestos en altura y de considerables luces gracias a su estructura prefabricada mixta.
客服
消息
收藏
下载
最近
















