查看完整案例

收藏

下载

翻译
Tipología:Biblioteca Cultura / Ocio
Material:Hormigón
Fecha:2010 - 2019
Ciudad:Nueva York
País:Estados Unidos
Fotógrafo:Iwan Baan Paul Warchol
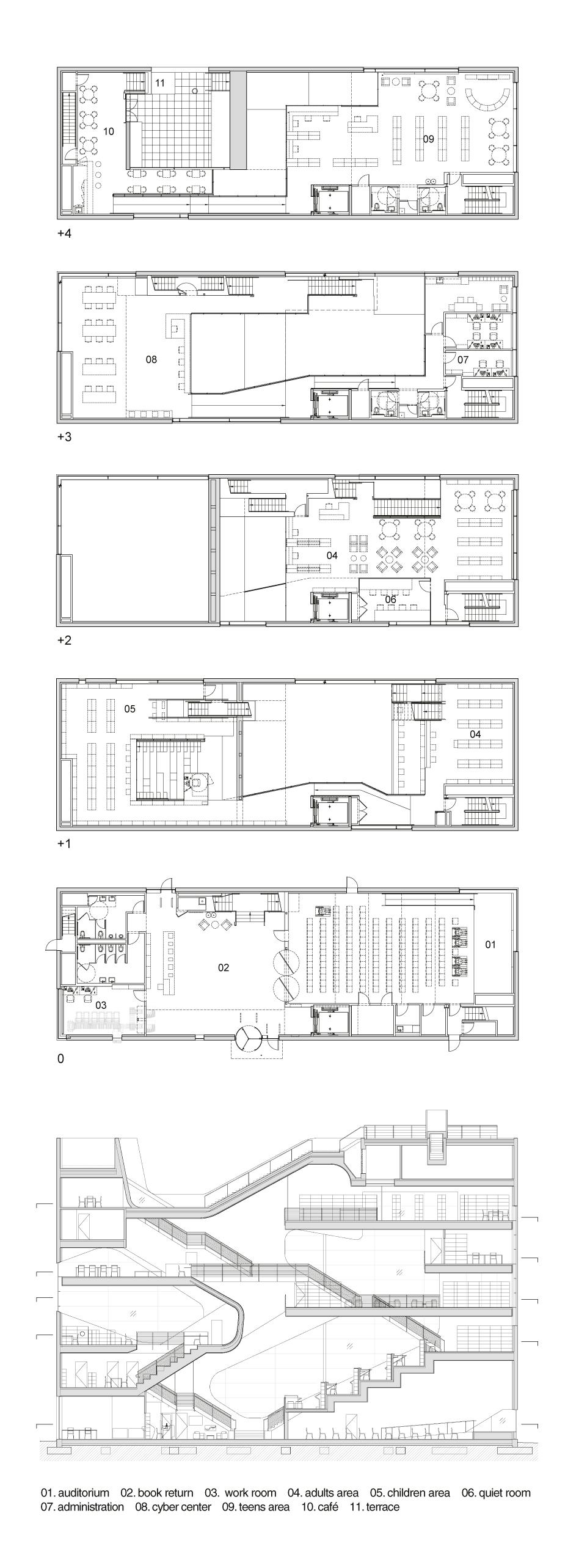
A orillas del East River, una sucursal de la Biblioteca Pública de Queens da respuesta a la demanda de espacio comunitario de los vecinos en un barrio casi exclusivamente residencial.
El edificio mantiene un perfil bajo y compacto para ocupar al mínimo la parcela e integrar en ella el vivido parque de ribera, al que se abre a través de grandes huecos ‘perforados’ en la fachada de hormigón portante.
Los recortes en la fachada responden a la sección del edificio, escalonada en torno a un vacío central, que organiza por niveles los distintos programas y alterna las distintas áreas de la biblioteca con espacios de reunión.
Las grandes aberturas que proporcionan generosa luz natural e imponentes vistas de Manhattan y el río, así como los revestimientos de bambú laminado, construyen un ambiente cálido y acogedor que estimula la lectura.
客服
消息
收藏
下载
最近











