查看完整案例

收藏

下载

翻译
Tipología:Sede / oficina Comercial / Oficina
Fecha:2020
Ciudad:Falkenberg
País:Alemania
Fotógrafo:David Franck
Marca:Steelcase
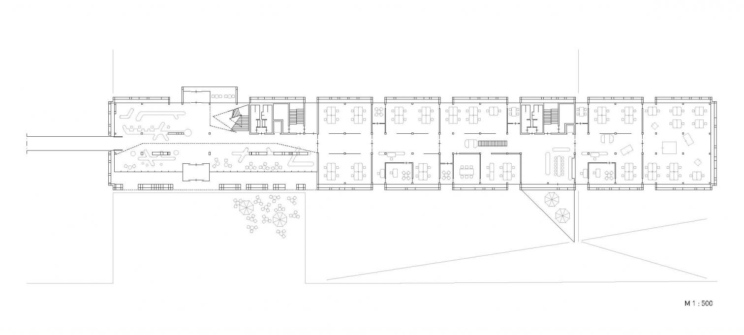
Fruto del concurso por invitación celebrado en 2018, el nuevo edificio de oficinas para la sede de la compañía IGZ ha sido finalizado por la firma de Berlín J. Mayer H. und Partner en el municipio de Falkenberg, en el estado federado de Baviera. Levantado en el lugar más alto del sitio, este volumen rectilíneo con 120 m de longitud es la primera construcción de la ampliación del campus, que contempla además un centro de innovación, más oficinas y un restaurante. Utilizando materiales locales como el granito y la madera, el edificio presenta un esqueleto de hormigón armado e incorpora elementos de soporte y refuerzo de madera y hormigón visto. La fachada de madera de color gris reinterpreta la materialidad de las construcciones existentes de la empresa. Los tabiques y los muebles empotrados son de madera y vidrio. El diseño flexible, que considera futuras modificaciones, incluye sistemas fotovoltaicos y de energía geotérmica.
客服
消息
收藏
下载
最近













