查看完整案例

收藏

下载

翻译
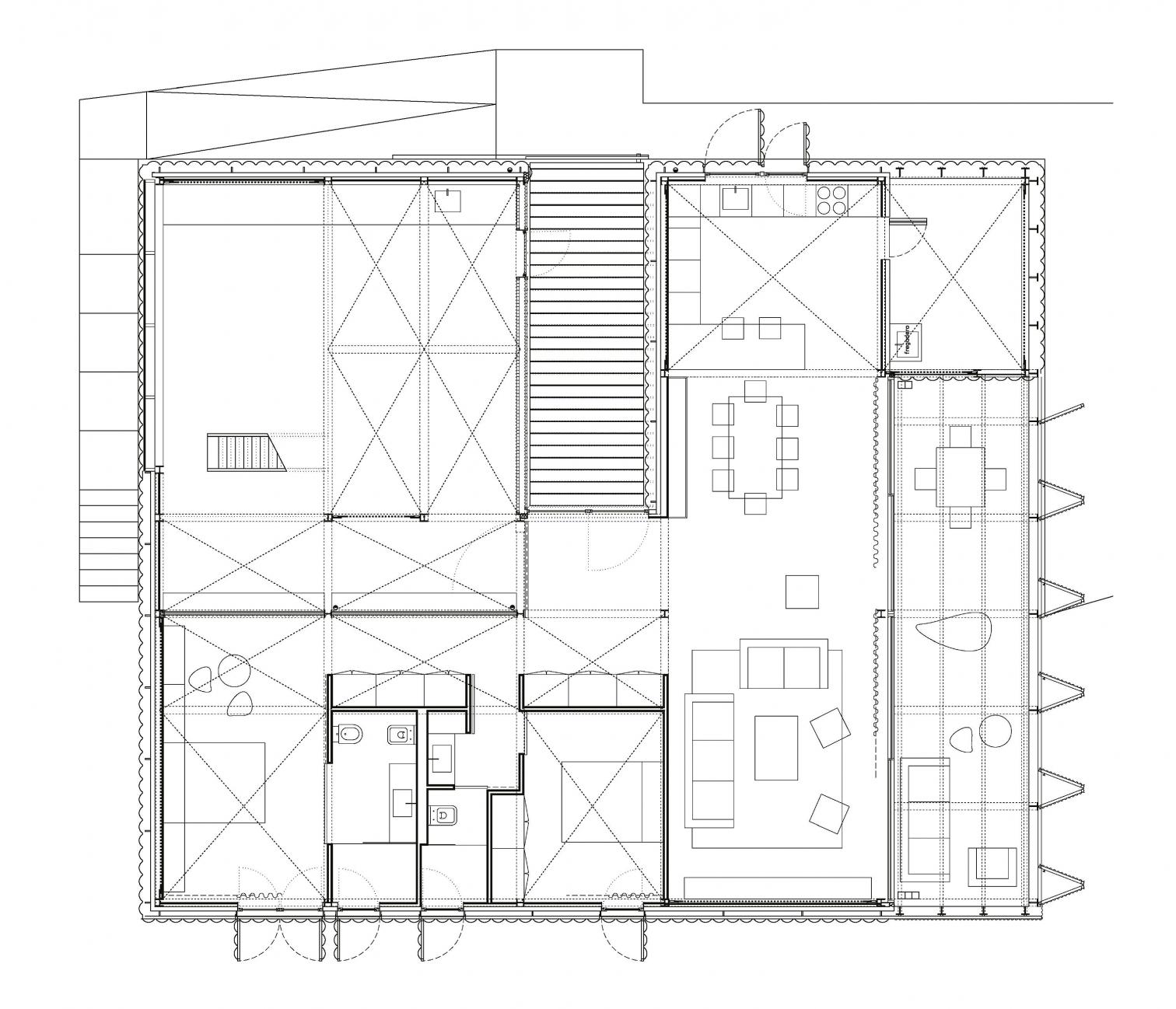
«Quiero un estudio donde poder vivir, no una casa donde poder trabajar.» Bajo la premisa del propietario —un pintor que regresa a su tierra natal tras una prolongada estadía en Norteamérica—, la casa se convierte en un espacio neutro y versátil, con ecos de la arquitectura industrial neoyorquina que le acogió tanto tiempo. Buscando hacerse ajena a su contexto, la casa se separa del terreno mediante una plataforma que ignora la topografía, en tanto que los huecos en fachada se ocultan tras una doble piel de chapa perforada de grandes dimensiones que diluye la reconocible escala doméstica y refuerza la condición objetual y abstracta que tanto interesa al artista en su obra pictórica.
El estilo de vida del morador se materializa en un interior continuo, sin más límites fijos que las particiones del dormitorio y del estudio conectado a una veranda al resguardo de un cerramiento de policarbonato pero abierta al encinar circundante.
客服
消息
收藏
下载
最近








