查看完整案例

收藏

下载

翻译
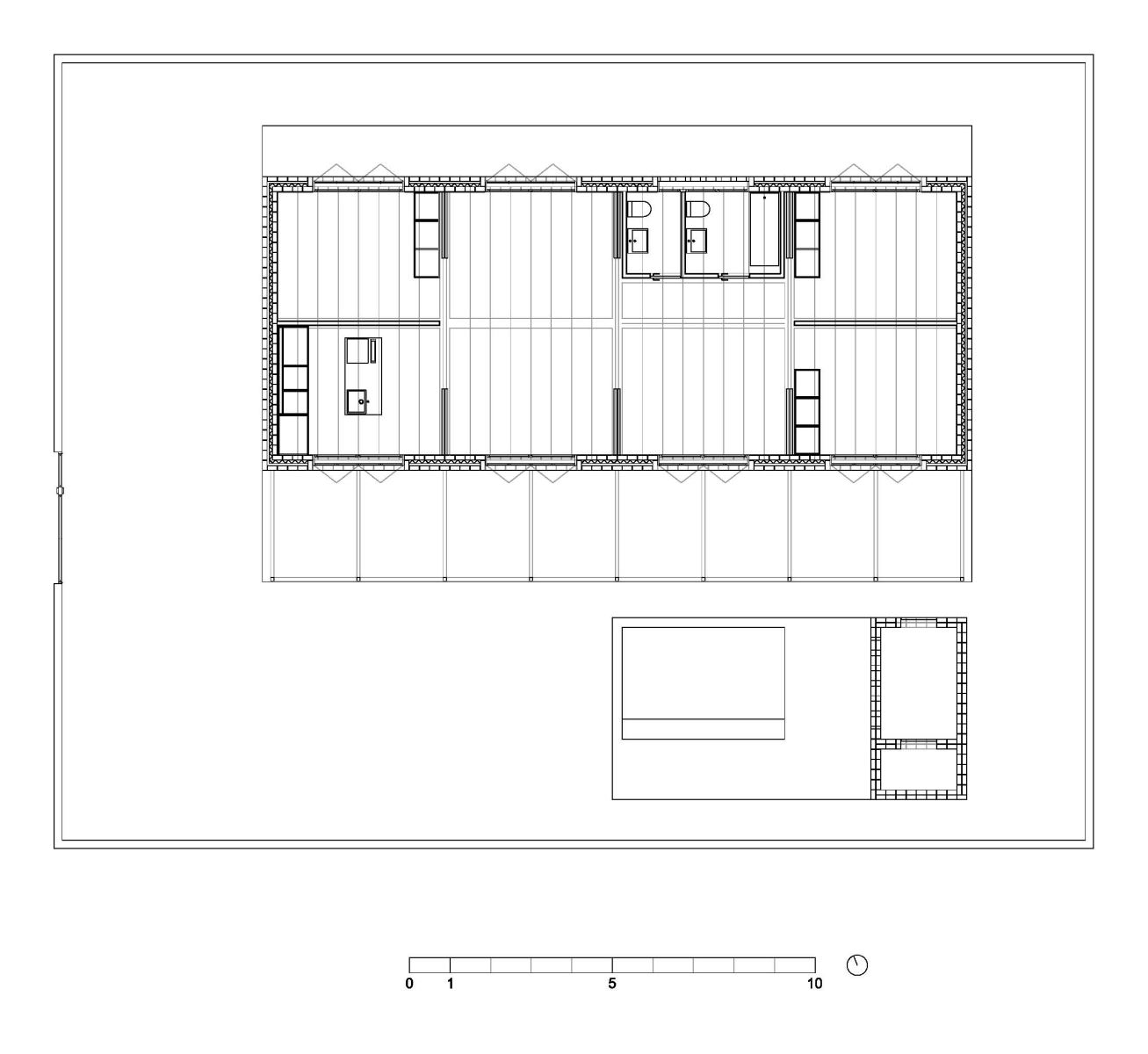
En los alrededores de la ciudad de Valencia, en el municipio de Bétera situado al este de la comarca del Campo de Turia, se encuentra esta vivienda firmada por Hugo Mompó y Juan Grau.
Aplicando la normativa local y la máxima economía de medios, un volumen rectangular y depurado resuelve compositivamente el programa, complementado con una pequeña alberca y un sencillo porche, para atender las necesidades de una pareja con dos hijos. Ocho espacios iguales dispuestos de manera ortogonal presentan espacios pintados en color blanco, delimitados por la cerámica del suelo y del grueso plano del techo. Los paneles correderos compartimentan las estancias, permitiendo generar un espacio continuo y unitario. La organización y las soluciones constructivas adoptadas buscan optimizar el comportamiento pasivo de la casa con gran eficacia energética.
客服
消息
收藏
下载
最近















