查看完整案例

收藏

下载

翻译
Tipología:Biblioteca Rehabilitación Cultura / Ocio
Material:Cerámico
Fecha:2016 - 2019
Ciudad:Molins de Rey (Barcelona)
País:España
Fotógrafo:Jordi Surroca
Marca:Lamp
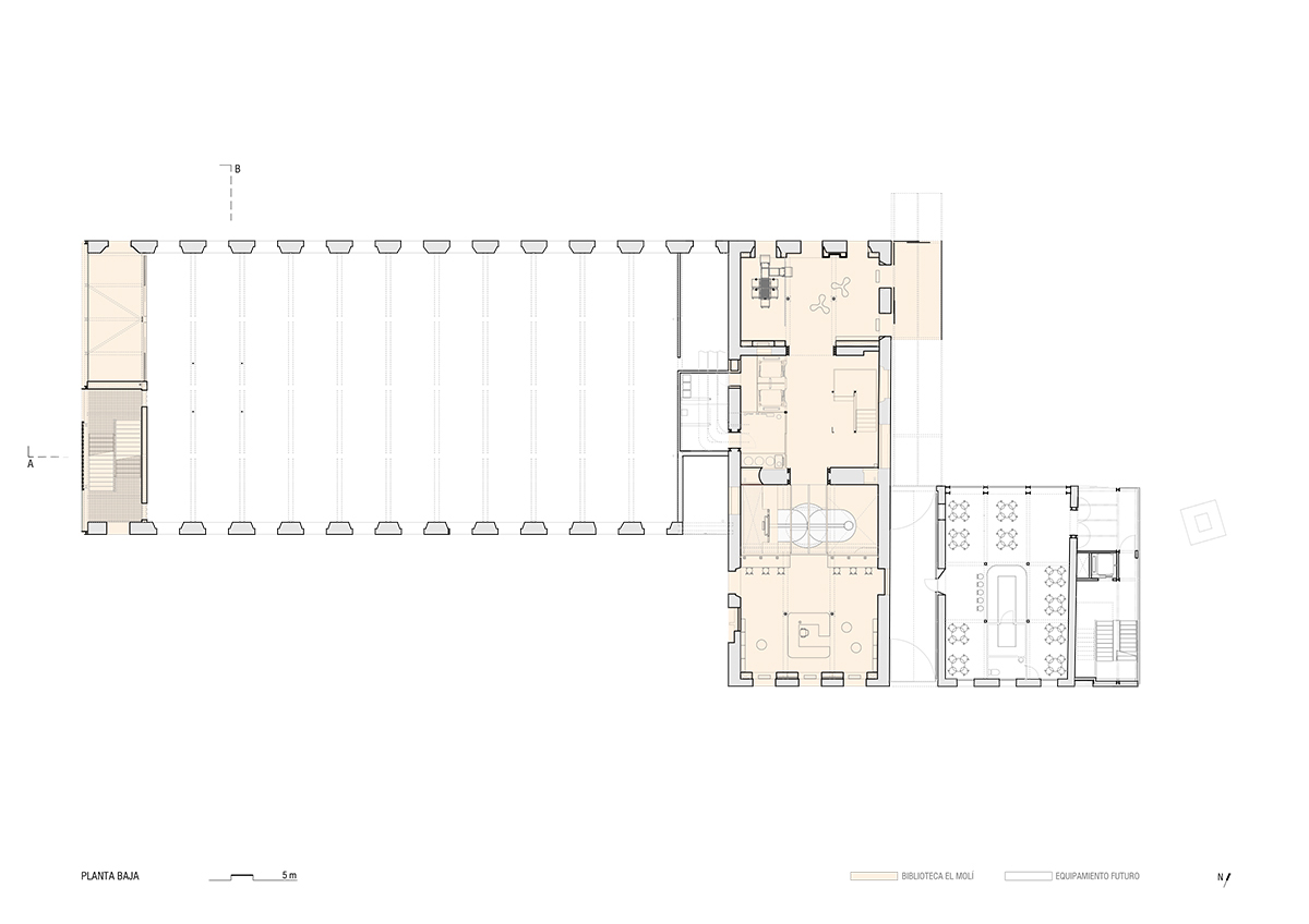
En el municipio barcelonés de Molins de Rei, la nueva biblioteca El Molí —anteriormente Biblioteca Pau Vila— se sitúa en la antigua nave industrial de Ferrer y Mora, una fábrica de tejidos construida en el año 1858, también conocida como la ‘fàbrica del molí’ por su ubicación junto a un molino que aprovechaba la energía hidráulica proporcionada por el Rec Vell hasta que instaló una máquina de vapor. En el año 1936 fue colectivizada, al igual que las otras fábricas de Molins de Rei, y finalmente a mediados de la década de 1960 fue clausurada, quedando en estado de abandono hasta que el Ayuntamiento de la localidad decidió recuperarla para albergar dependencias municipales.
La biblioteca se ubica en las dos plantas superiores, y el resto del edificio se destinará a oficinas y otros equipamientos administrativos. Esta situación define una nueva sección de la cubierta, que recupera el perfil original de la fábrica, incorpora las vistas e iluminación natural y permite disfrutar de las terrazas desde la planta superior.
Como el Paseo del Terraplè no sigue la traza de El Molí, el edificio ha quedado en una posición urbana singular. Así, la fachada sur se ha convertido en un elemento visual de referencia de la fábrica. El antiguo testero, prácticamente ciego, se transforma en una galería que filtra la luz hacia el interior, tamizada por un muro de celosía cerámica. En este espacio se dispone una zona de lectura exterior, así como la escalera y los accesos del futuro equipamiento municipal.
El núcleo de comunicaciones verticales y los conductos de las instalaciones se ubican en el centro del edificio. Este nuevo espacio, que comunica las distintas plantas, tiene un sistema de pasarelas cruzadas alrededor de una escalera suspendida del techo que facilita la comprensión inmediata del conjunto a través de las relaciones visuales y las transparencias que se establecen entre los distintos niveles. El proyecto ha conservado las huellas y texturas del pasado en los muros, y las irregularidades donde se anclaban poleas y correas.
La intervención se ha centrado en la restauración de los materiales de fachada y en la recuperación de la estructura original interior, mediante un refuerzo superior con hormigón aligerado sobre las bóvedas tabicadas cerámicas, soportadas por columnas de hierro fundido, sobre las que se apoyan vigas de madera existentes.
Una parte del sótano se ha incorporado a la planta baja, para que sea posible ver las antiguas galerías, incluida una turbina doble original de la fábrica, hallada y desenterrada durante las obras.
客服
消息
收藏
下载
最近















