查看完整案例

收藏

下载

翻译
Tipología:Universidad Campus universitario Educación
Material:Hormigón
Fecha:2019
Ciudad:Segovia
País:España
Fotógrafo:Roland Halbe
Marca:Cortizo
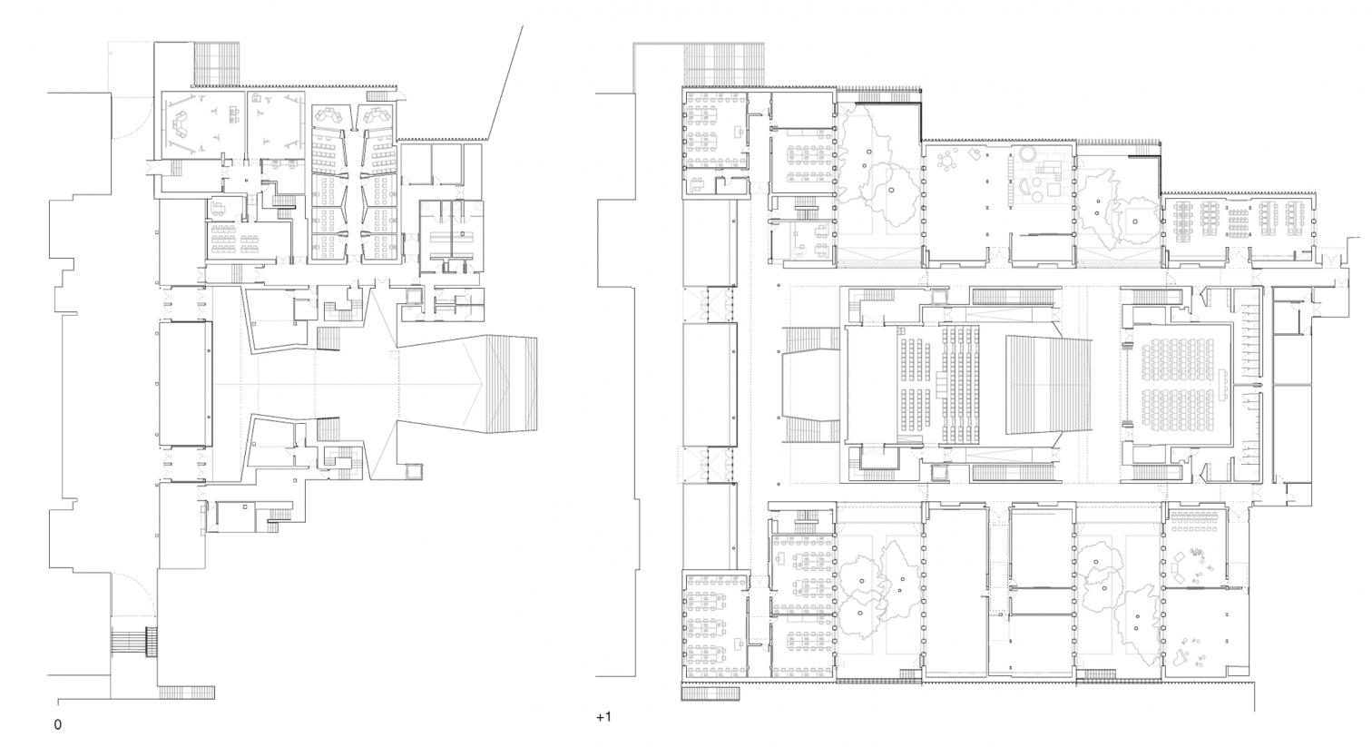
El edificio viene a completar el Campus de la Universidad de Valladolid en Segovia, del que ya se había ejecutado la fase I —finalizada en 2011—, complementando su programa con aulas específicas de las carreras del campus, despachos, salón de actos y salón de grados.
Entre las fases I y II del campus existe una calle interior a dos niveles: una ‘espina dorsal’ que permeabiliza la parcela del antiguo cuartel dividiéndola en dos partes, haciendo posible la conexión entre el barrio actualmente existente y los terrenos de los antiguos cuarteles en los que está previsto edificar. Esta ‘espina dorsal’ conecta las dos fases, sirviendo de puente de unión transversal.
Tipológicamente el edificio es en el perímetro un ‘doble peine’, orientado uno hacia la calle Caño Grande y otro hacia la calle Coronel Rexach. En el eje central se sitúan los dos volúmenes representativos, el salón de actos y el salón de grados, del mismo modo que hace la biblioteca en la faseI. Estos volúmenes, en cierto modo grandes cofres de madera, están separados por espacios de gran altura iluminados por luz cenital que reafirman su independencia formal y su importancia funcional. La autonomía volumétrica se fortalece con el espacio que discurre bajo el salón de actos, sobre el que éste parece levitar. A este espacio central se accede desde el ‘ágora’ o plaza cubierta de la faseI, rematando el recorrido bajo el salón de actos con una gran escalinata que conduce al salón de grados, un espacio de gran altura, con techo en forma de artesa invertida por el que resbala la luz cenital.
Los bloques de aulas y despachos están iluminados y separados entre sí por patios ajardinados. A nivel de patio se ubican las aulas, y en las dos plantas siguientes los despachos. La diferencia de anchura respecto a las aulas permite la colocación de pasillos en anillo en las plantas de despachos. Su centro está ocupado por espacios de tutorías vidriados y pequeños patios interiores que permiten el paso de la luz natural a los pasillos de aulas. Se han buscado colores y texturas de carácter cálido, con acabados derivados de la madera; así, el negro se utiliza como color neutro entonando con la madera y cediéndole el protagonismo.
Las fachadas tienen un carácter muy diferente hacia las calles o hacia los patios ajardinados. Hacia estos adquieren un carácter más doméstico, con un alzado de ventanas y un color neutro gris oscuro. Hacia los espacios urbanos aportan en cambio un carácter más abstracto, marcando un ritmo repetitivo y vertical que busca continuar de forma diferente el de la fase I. Construidas también en hormigón prefabricado, aquí se evita su color gris típico al sacar los tonos más cálidos del árido.
Una calle interior a dos niveles une las dos partes del campus. En el nuevo edificio, el salón de actos y el de grados ocupan dos grandes ‘cofres’ de madera, separados entre sí por espacios de gran altura iluminados cenitalmente.
Bajo el volumen del salón de actos se desarrolla un amplio espacio sobre el que parece flotar; desde allí una escalinata conduce al salón de grados, de gran altura y con techo en forma de artesa invertida por el que resbala la luz cenital.
客服
消息
收藏
下载
最近













