查看完整案例


收藏

下载

翻译
Tipología:Centro de mayores Cultura / Ocio
Material:Madera
Fecha:2016 - 2019
Ciudad:Lliçà d’Amunt (Barcelona)
País:España
Fotógrafo:Simón García
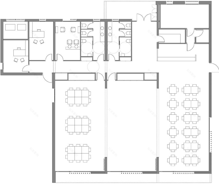
Situado en una isla de equipamientos municipales, junto a una guardería y un centro cívico al pie de la carretera de Palaudàries, el centro de mayores, con una sola planta y 490m² de superficie, cuenta con un vestíbulo principal con acceso desde la carretera y un gran espacio polivalente que puede funcionar como una, dos o tres salas independientes, con fachada al espacio interior de manzana, donde está ubicado el patio de la guardería. A un lado del acceso principal, con fachada a la calle, se sitúa la cocina, con su despensa y un almacén anexo, y la salida a una terraza donde se prevé instalar una barbacoa. Al otro lado del acceso principal, también con fachada a la calle, se organiza el resto de salas y servicios: dos despachos, una peluquería y dos aseos generales.
El proyecto ha abordado con éxito dos retos: construir un edificio con calificación energética A (la máxima eficiencia energética), y desarrollarlo con la metodología BIM (Building Information Modeling).
La máxima eficiencia energética se ha conseguido optimizando la orientación, incrementando los aislamientos térmicos el 200% y utilizando instalaciones de alto rendimiento energético tanto en climatización (aerotermia) como en iluminación (led).
La metodología BIM —consistente en crear un modelo digital 3D del edificio integrando arquitectura, estructura e instalaciones— ha permitido la colaboración y comunicación eficiente entre los diferentes técnicos en la fase de diseño, un control técnico y económico exhaustivo en la fase de construcción, y un modelo del edificio totalmente fiel a la realidad construida que posibilitará su gestión y mantenimiento a lo largo de toda su vida útil.
En la vertiente más arquitectónica, el proyecto ha incorporado un sistema innovador de estructura de paneles de madera contralaminada que integra la estructura y los cerramientos en un mismo elemento que es, además, el acabado final, logrando crear unos espacios de gran calidez y confort para los usuarios. El edificio se organiza mediante estos paneles estructurales de madera que definen todos los espacios y la volumetría de la cubierta, diseñada con diferentes alturas dependiendo de la diversidad de los usos: mayor altura en las salas de actividades, y menor en los espacios de circulación, despachos y servicios.
La utilización de materiales naturales —como la madera en la estructura y las ventanas—, materiales reciclados —como los falsos techos de virutas de madera— y sistemas prefabricados de construcción ha contribuido a que se reduzcan de manera considerable el impacto y las emisiones del edificio.
客服
消息
收藏
下载
最近








