查看完整案例

收藏

下载

翻译
Tipología:Museo Educación Cultura / Ocio
Material:Metal
Fecha:2010 - 2016
Ciudad:Berkeley
País:Estados Unidos
Fotógrafo:Iwan Baan
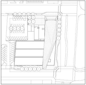
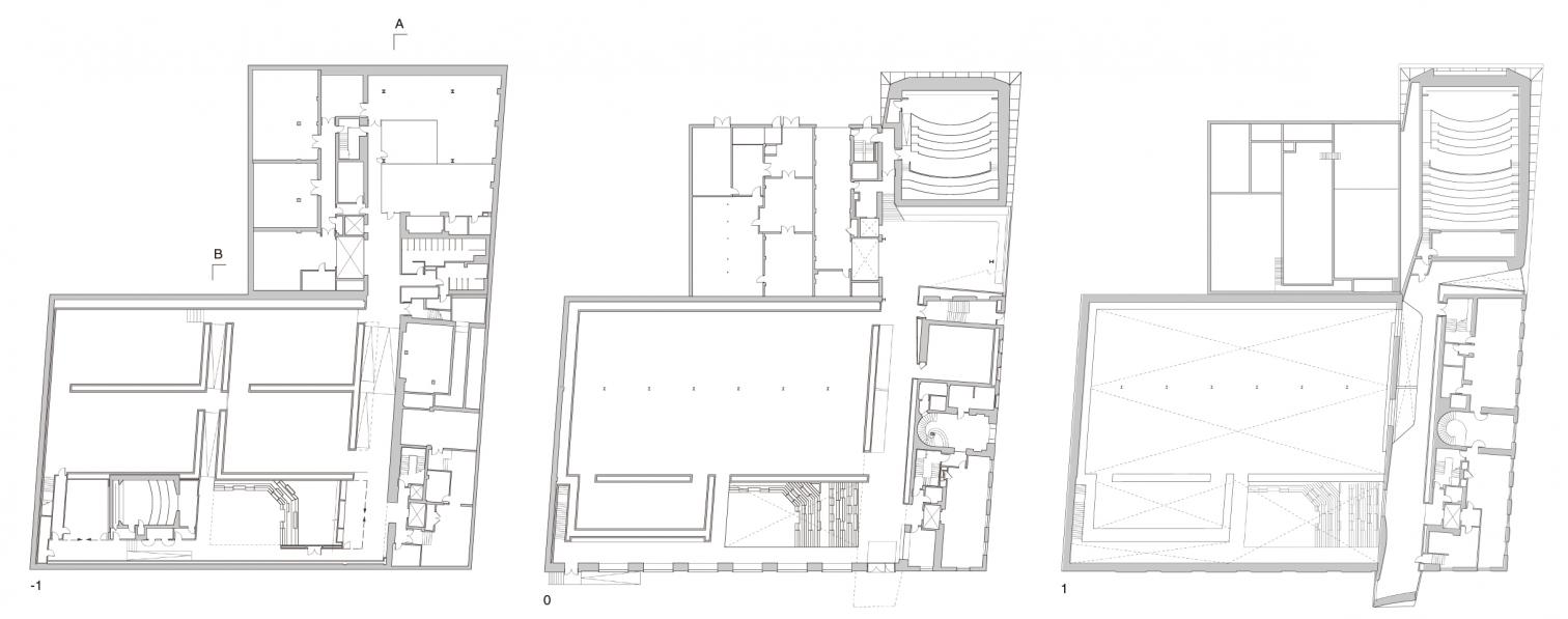
En el límite entre la ciudad de Berkeley y el histórico campus de la Universidad de California, la ampliación del centro de artes visuales BAMPFA —que fusiona el Museo de Arte de la Universidad y la filmoteca Pacific— aúna los intereses cívicos y académicos, ofreciendo una experiencia accesible a toda la comunidad. Una superficie reglada de acero inoxidable se adhiere al antiguo edificio de prensa, construido en 1939, y crea un eje vertebrador que comienza con una cafetería en voladizo sobre la fachada sur y termina con una pantalla multimedia en el extremo norte. En el punto de encuentro entre el nuevo volumen escultórico y el bloque ortogonal existente, la piel metálica se pliega dejando ver el atrio interior a través de una piel acristalada. Asimismo, las ventanas a lo largo de la fachada de Center Street se amplían para que los peatones puedan contemplar desde la calle el ‘Art Wall’, una superficie de 60 x 25 pies donde se exponen murales temporales.
El proyecto se concibe, por tanto, como una interfaz permeable entre la institución y el público. Además de las galerías de arte, que se sitúan en la nave existente con cubierta en diente de sierra, el centro incluye un pequeño auditorio, un laboratorio de creación artística, una biblioteca, un área de estudio y una cafetería. En el interior, los ambientes neutros destinados a las exposiciones se combinan con espacios expresivos forrados de rojo en las zonas comunes. La fachada metálica, cuya geometría se ha diseñado con herramientas paramétricas, se construye con paneles de acero inoxidable unidos entre si mediante el sistema de junta alzada, que aporta al conjunto una imagen rítmica.
客服
消息
收藏
下载
最近
















