查看完整案例

收藏

下载

翻译
Tipología:Escuela especializada Educación
Fecha:2007 - 2011
Ciudad:Providence
País:Estados Unidos
Fotógrafo:Iwan Baan
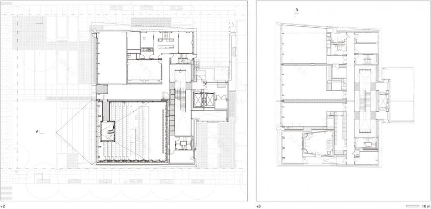
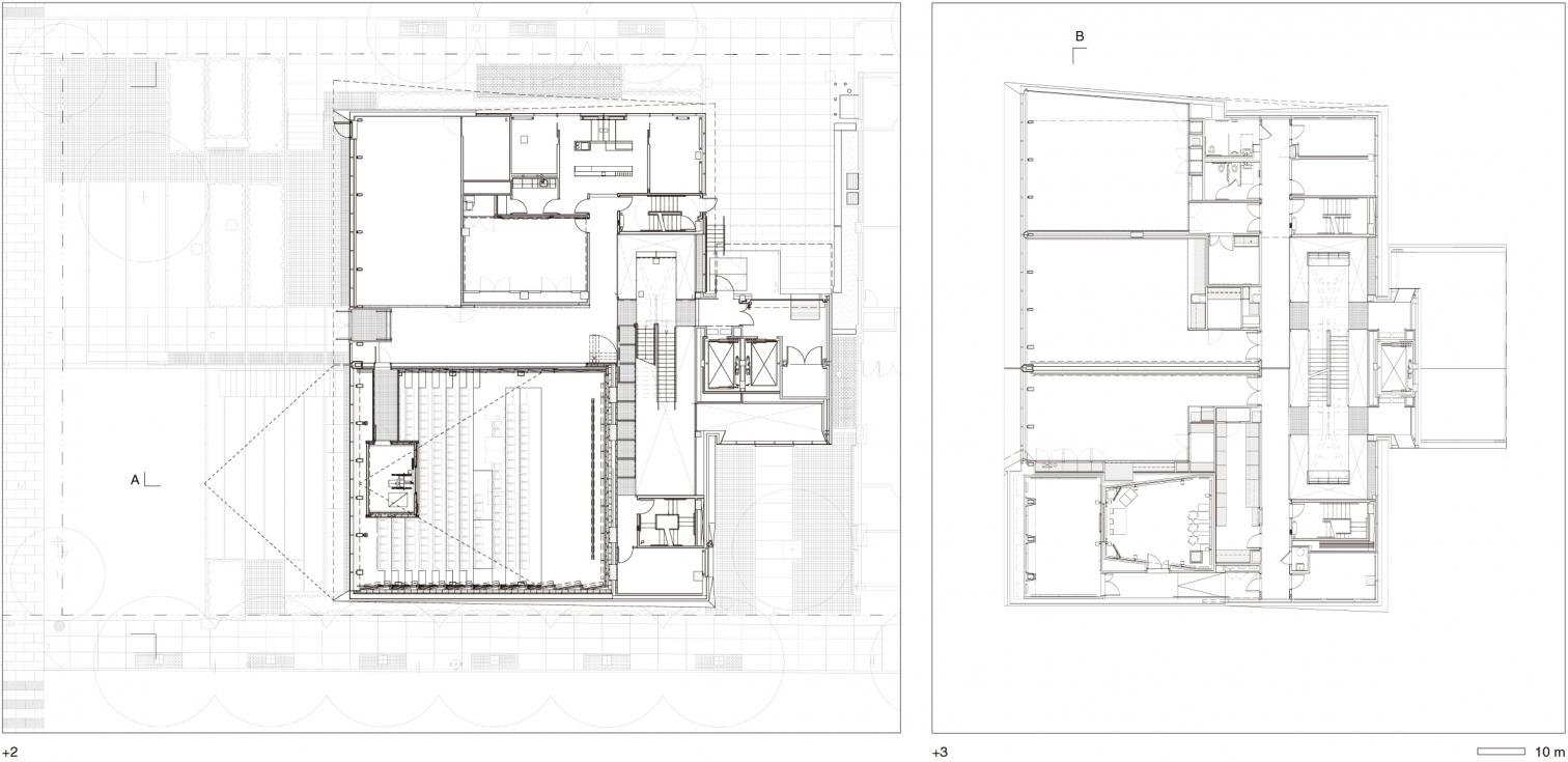
Como resultado de una operación conceptual que corta en dos el edificio, el Granoff Center for the Creative Arts está formado por una serie de espacios interconectados que promueven la simbiosis entre diferentes disciplinas relacionadas con las artes, las ciencias y las humanidades. Situado en el campus de la Universidad de Brown, en Providence, el edificio busca atraer tanto a los estudiantes como al resto de los ciudadanos a través de una fachada acristalada que exhibe, como si se tratara de un conjunto de escaparates apilados, lo que ocurre en su interior.
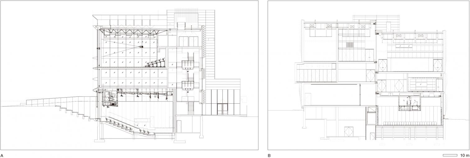
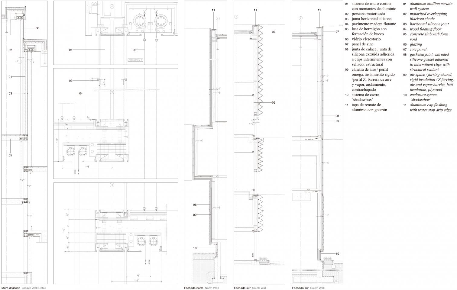
El programa que requiere espacios más amplios —como el auditorio, el estudio de grabación, el laboratorio multimedia, las aulas polivalentes o las galerías de arte— se sitúa en el frente principal; mientras que los usos secundarios —como oficinas, salas de reunión o servicios— se encuentran en la parte trasera junto a una escultórica escalera que extiende los descansillos para crear pequeñas zonas de encuentro en voladizo. En los alzados laterales, la envolvente, compuesta por paneles de zinc, se pliega en determinados puntos para dejar entrar la luz, generando una textura plisada que se alisa progresivamente. Esta geometría quebrada se extiende al paisajismo, que se inclina hacia arriba para conectar con el vestíbulo y hacia abajo para crear un auditorio urbano.
客服
消息
收藏
下载
最近















