查看完整案例

收藏

下载

翻译
Tipología:Universidad Educación Torre
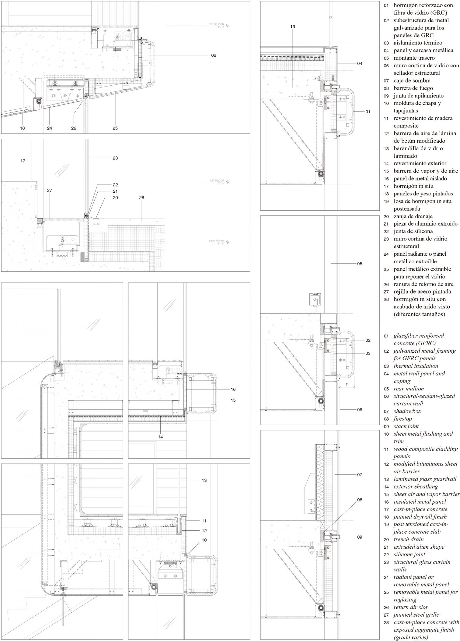
Material:Vidrio GRC
Fecha:2010 - 2016
Ciudad:Nueva York
País:Estados Unidos
Fotógrafo:Iwan Baan
Una cinta continua de circulaciones y espacios comunes asciende por la fachada sur del Roy and Diana Vagelos Education Center, situado en el distrito de Washington Heights en el norte del campus urbano de la Universidad de Columbia, en Nueva York. La torre de 14 plantas cobija un programa destinado a la enseñanza de medicina, y expone su parte más pública —auditorios, aulas informales y áreas de descanso— a través de un testero completamente acristalado. Desde el punto de vista constructivo, lo más destacable del proyecto es su estructura de hormigón armado de la que cuelgan una serie de espacios interconectados dispuestos en cascada, así como el revestimiento opaco formado por paneles prefabricados de GRC (cemento reforzado con fibra de vidrio). Como contrapunto al alzado principal transparente, el frente orientado al norte alberga las oficinas y los espacios de aprendizaje especializados —aulas, laboratorios y centros de prácticas— tras una piel tamizada que filtra la luz a través de un vidrio fritado de cerámica que aumenta su opacidad en función de la privacidad del programa. Esta combinación de espacios flexibles y zonas de encuentro plantea un cambio de paradigma en la forma de enseñar medicina, promoviendo un intercambio dinámico entre los estudiantes, los profesores y la comunidad.
客服
消息
收藏
下载
最近















