查看完整案例

收藏

下载

翻译
Tipología:Agrícola y ganadero Vivienda
Fecha:2019
Ciudad:Puente Blanco (Santa Cruz)
País:Argentina
Fotógrafo:Cristóbal Palma Celine Frers
En el paraje de Puente Blanco, en un remoto lugar de la Patagonia argentina próximo a la frontera sur con Chile, se ubican estas instalaciones ganaderas renovadas y ampliadas por Richter Dahl Rocha & Associés architectes (RDR architectes), firma fundada por Jacques Richter e Ignacio Dahl Rocha, con oficinas en Lausana y Buenos Aires.
La denominada Estancia Morro Chico fue levantada por un inmigrante escocés que a finales del siglo XIX participó en ‘el gran arreo’, el viaje en el cual cerca de 5.000 ovejas recorrieron más de 2.000 kilómetros desde la pampa húmeda para poblar las grandes extensiones que el Gobierno cedía a los colonos.
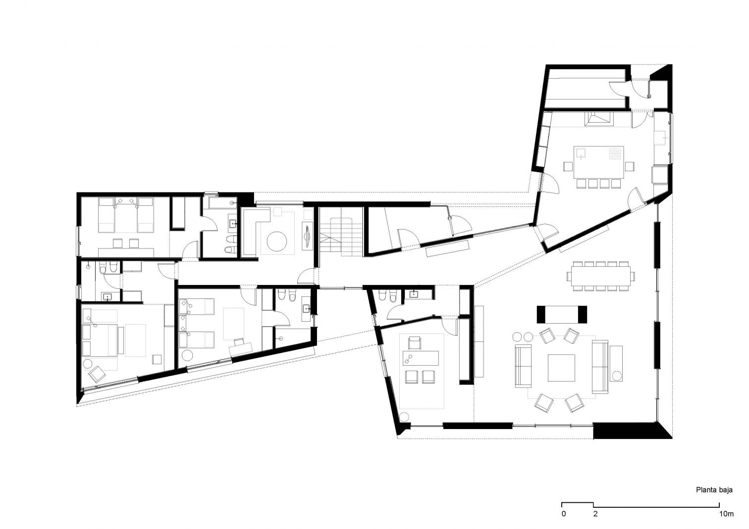
Sus descendientes encargaron a RDR architectes la remodelación del complejo destinado a la producción de lana y carne, que incluye nuevas construcciones como un cobertizo para esquilar ovejas, un galpón para la maquinaria y el almacenamiento, viviendas para el personal y los huéspedes, así como una casa familiar.
Inspirado en la tradición constructiva local, el conjunto simple y austero se diluye en el desierto patagónico siguiendo el modelo de aldea compacta en el que las construcciones utilitarias y las viviendas se agrupan para mitigar la dureza del clima. Las instalaciones están fragmentadas en tres partes: núcleo principal y dos puestos (Arteaga y El Zurdo). Considerando su eficiencia energética, mientras se incorporan sistemas de energías renovables (paneles solares y molinos de viento), los volúmenes prefabricados de madera y metal, revestidos con chapas onduladas, se desarrollan como variaciones formales del galpón, desde la simpleza de la nave para esquilar hasta las formas más complejas de la casa familiar. De la misma manera, la presencia de la madera predomina en esta casa y va disminuyendo su uso progresivamente a medida que aumenta el carácter utilitario de las construcciones hasta desaparecer en la nave para esquilar.
客服
消息
收藏
下载
最近























