查看完整案例

收藏

下载

翻译
Tipología:Universidad Campus universitario Educación
Material:Hormigón
Fecha:2017 - 2019
Ciudad:Tianjin
País:China
Fotógrafo:Shengliang Su Chen Hao
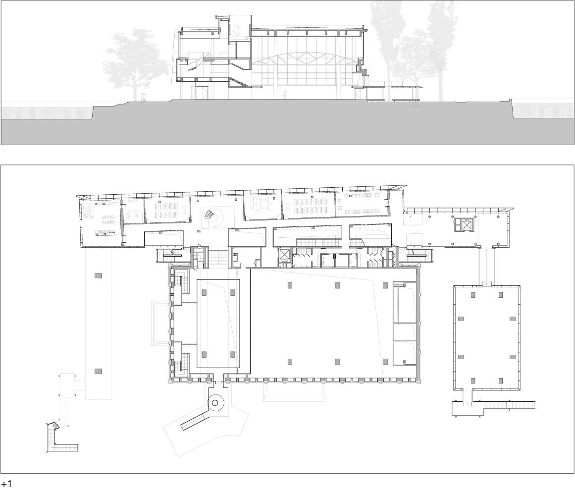
El objetivo princial del proyecto consiste en enriquecer el antiguo campus de la Universidad de Nankai con un espacio multifuncional para estudiantes, profesores y exalumnos. El solar está flanqueado por agua a ambos lados, da en su orientación este al lago de la Herradura y se sitúa en el eje central del campus original de la universidad, construido en los tiempos de la primera República China, hace ya un siglo. El Centro Haibing es un intento de dar una respuesta espacial a un contexto tan concreto y singular, con el objetivo de estimular un estilo de vida moderno que respete, al mismo tiempo, la conformación histórica del campus.
Esta respuesta espacial se ha hecho depender de algunos temas centrales que se tuvieron en cuenta desde el comienzo del proceso de diseño, especialmente la pregunta de cómo el nuevo edificio podría relacionarse de una manera más estrecha con el agua, y relacionarse asimismo con el comedor preexistente en el enclave, un edificio de ladrillo rojo. Todo ello preservando todo lo posible el arbolado. Con este fin, se optó por renunciar a una estrategia de demolición y reconstrucción a gran escala, para embarcarse en un proyecto sensible al contexto, en el que lo viejo y lo nuevo pudieran ligarse de una manera equilibrada y auténtica.
客服
消息
收藏
下载
最近













