查看完整案例

收藏

下载

翻译
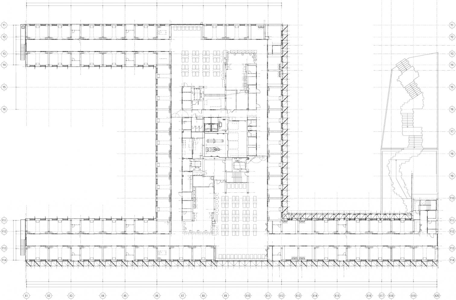
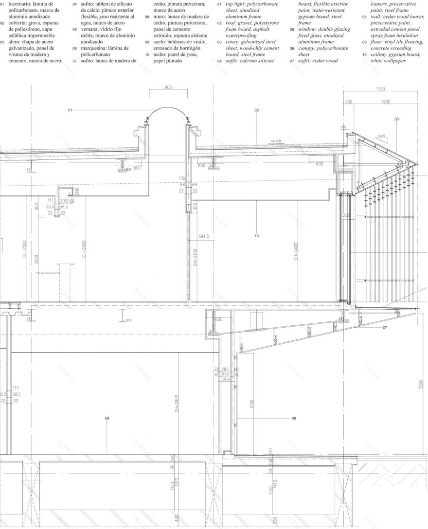
En las fachadas orientadas al sur, una celosía de lamas de cedro filtra la luz del sol y genera un patrón dinámico que reproduce la sombra creada por los árboles. La esbeltez y la precisión de los perfiles de madera contribuye a crear una imagen delicada y acogedora. Las habitaciones se sitúan en el segundo nivel y cuentan con grandes ventanas frente a la cama para que los pacientes puedan mirar hacia el bosque. A lo largo de los pasillos centrales, una serie de lucernarios cenitales introducen iluminación natural y aportan variedad al recorrido interior. La planta baja, por su parte, se reserva para espacios de terapia, consultorios, salas de espera e instalaciones.
客服
消息
收藏
下载
最近












