查看完整案例

收藏

下载

翻译
Tipología:Rehabilitación Industria Cultura / Ocio
Material:Cerámico Ladrillo
Fecha:2011 - 2017
Ciudad:Shanghái
País:China
Fotógrafo:Eiichi Kano Erieta Attali
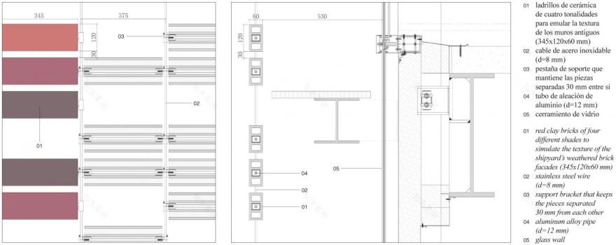
En la orilla sur del río Huangpu, dentro del distrito financiero de Pudong en Shanghái, un antiguo astillero construido en 1972 se ha transformado en un complejo de usos mixtos con tiendas, un teatro y salas de exposiciones. El reto principal del proyecto fue mantener la monumentalidad de la estructura original que albergaba un gran vacío continuo de 200 x 45 x 26 metros. Los requisitos del programa se resuelven, por tanto, de manera compacta para reservar tres grandes atrios con la altura original: dos transversales que continúan el trazado del tejido urbano y uno longitudinal que enlaza entre sí las diferentes actividades de la nave. Este vacío comprimido enfatiza la verticalidad del edificio y dramatiza el encuentro entre la escala humana y el tamaño colosal del astillero. En lugar de quedar oculta, la estructura portante se desnuda y se libera de obstáculos para que adopte un papel protagonista en la caracterización del espacio. De la misma forma, en el exterior se busca capturar la esencia de los muros existentes mediante una pantalla pixelada de ladrillos suspendidos sobre cables de acero que recrea las cualidades irregulares de los ladrillos fabricados a mano. Esta nueva fachada permeable permite el paso de la luz y las vistas, y establece una gradación suave entre la solidez de los muros originales y la ligereza del nuevo cerramiento.
客服
消息
收藏
下载
最近

















