查看完整案例

收藏

下载

翻译
La compañía Arauco, una de las líderes mundiales en la industria de la madera, ha escogido los terrenos que ocupaba una antigua fábrica de cerveza en la ciudad de Concepción, al sur del país, para construir sus oficinas principales. Este proyecto resultó ganador en el concurso convocado por la empresa chilena para su campus corporativo.
El solar, próximo a la ciudad histórica, aún mantiene vestigios de la antigua industria cervecera. Allí aparece, en primer término, la ladera del cerro Caracol, un terreno escarpado y boscoso donde la fuerte presencia de la naturaleza define el carácter del lugar. Una terraza, sobre la que se apoyan los vestigios del pasado fabril, da paso más abajo a un plano amplio que se extiende y se funde con el de la ciudad.
Las preexistencias arquitectónicas se incorporan al programa, alojando en ellas usos colectivos como cafetería, gimnasio y exposiciones. Frente a estos vestigios se propone un espacio exterior en torno al cual se reúnen los edificios que el programa requería. Allí, las jardineras que descienden desde el cerro articulan el orden orgánico y la geometría cartesiana, al tiempo que se entremezclan con zonas de circulación y de estancia. La torre preexistente, parte de la antigua fábrica, engrana a modo de bisagra las edificaciones históricas, las nuevas propuestas y el arroyo que se interna en el cerro.
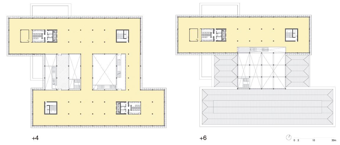
Un nuevo edificio de oficinas se erige como el principal del conjunto, haciendo de la fragmentación la estrategia necesaria para establecer un diálogo equilibrado entre los volúmenes precedentes y las nuevas construcciones. En su interior, el programa —organizado en torno a un patio— se acomoda libremente, evitando un orden jerárquico del espacio.
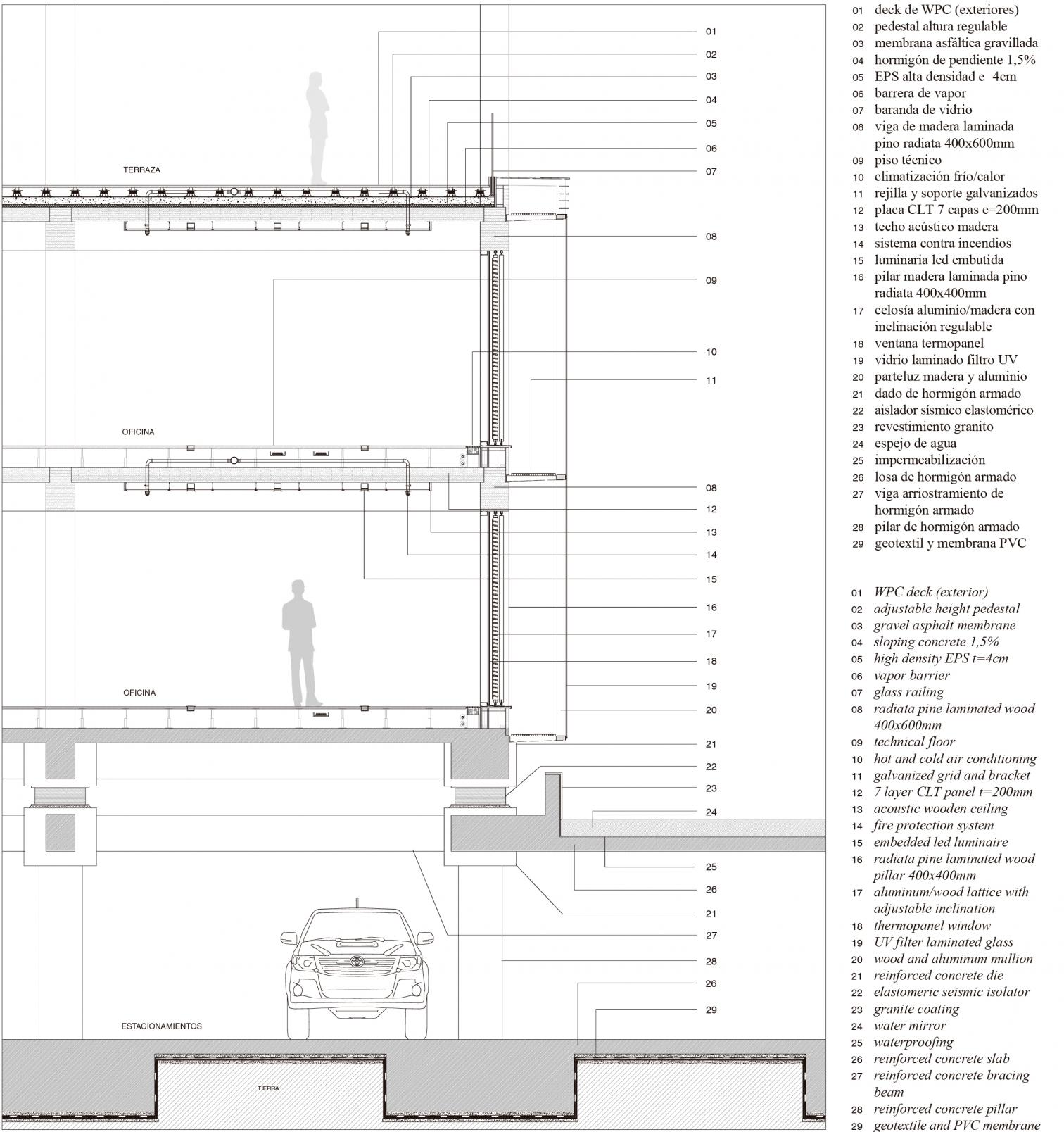
Los nuevos volúmenes han sido íntegramente compuestos mediante un sistema constructivo simple, racional y replicable, formado por una estructura de vigas y pilares de madera laminada, arriostrada por losas de madera tipo CLT. Adicionalmente, se proponen cuatro núcleos de hormigón que concentran escaleras y ascensores como elementos estructurales que resisten los esfuerzos horizontales de un terremoto, sistema que se complementa con aisladores sísmicos bajo cada columna de madera.
El módulo, de 6 x 6 x 3,60 metros, se hace eco de la malla que ordena y articula las distintas fracciones del campus. Dentro de la racionalidad del orden propuesto, la adición o sustracción de las losas de madera permitió lograr una espacialidad compleja que otorga riqueza y variedad al interior del edificio.
Como límite con el espacio público se propone un pabellón para visitantes, generando una necesaria interioridad en torno a la plaza.
客服
消息
收藏
下载
最近
















