查看完整案例

收藏

下载

翻译
Rodeados de árboles y zonas verdes, los tres bloques residenciales que conforman el conjunto Chilestieg se distribuyen sobre una amplia parcela en el municipio de Rümlang. Esta comuna suiza de 8.000 habitantes —situada junto al aeropuerto de Zúrich— está formada principalmente por terreno agrícola, bosques y construcciones de baja densidad. Las viviendas se hacen eco de la tranquilidad de este entorno suburbano, pero en lugar de fundirse con la naturaleza de forma dispersa se agrupan de manera compacta, evitando talar el mayor número posible de árboles. Así, se crea un llamativo contraste entre la cualidad mineral de los volúmenes macizos y el carácter vegetal del resto de la parcela.
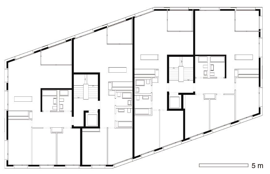
La geometría hexagonal de la planta de cada edificio permite que las viviendas disfruten de varias orientaciones, logrando que la mayoría reciba luz directa del sur o el oeste y que todas tengan ventilación cruzada. La posición de cada uno de los tres bloques está cuidadosamente estudiada para continuar la trama urbana existente y evitar que se interrumpan las vistas.
La pureza de estas tres piezas insertas en el paisaje se enfatiza mediante un revestimiento de acero galvanizado en caliente. Gracias al espesor mínimo de la chapa, que llega hasta los tres milímetros, se alcanza una gran precisión en las aristas tanto de los huecos como de la volumetría general. La partición de los paneles de acero de gran tamaño se corresponde con la posición y la geometría de las ventanas, alcanzando un rigor formal en donde todo encaja que contribuye a la calidad estética del conjunto. Además, la superficie metálica con acabado pulido capta y refleja de forma matizada la luz natural y las sombras de la vegetación circundante, lo que enriquece y añade dinamismo a la percepción de las diferentes fachadas.
El conjunto incluye un total de 41 apartamentos de 3, 4 y 5 habitaciones a los que se accede a través de dos amplios núcleos de comunicación. A pesar del aspecto hermético de los compactos volúmenes, el tamaño de las ventanas y la disposición de las habitaciones dan lugar a viviendas abiertas y luminosas. Las unidades residenciales situadas a nivel de calle cuentan con jardines particulares delimitados por setos de diferentes alturas y espesores, así como arbustos y flores que funcionan como barrera natural entre el espacio público y el privado. Concebido de forma unitaria, el proyecto paisajístico busca evocar la imagen de un parque rodeado por árboles de gran porte donde los caminos y la vegetación fluyen de forma continua entre las piezas construidas.
客服
消息
收藏
下载
最近









