查看完整案例

收藏

下载

翻译
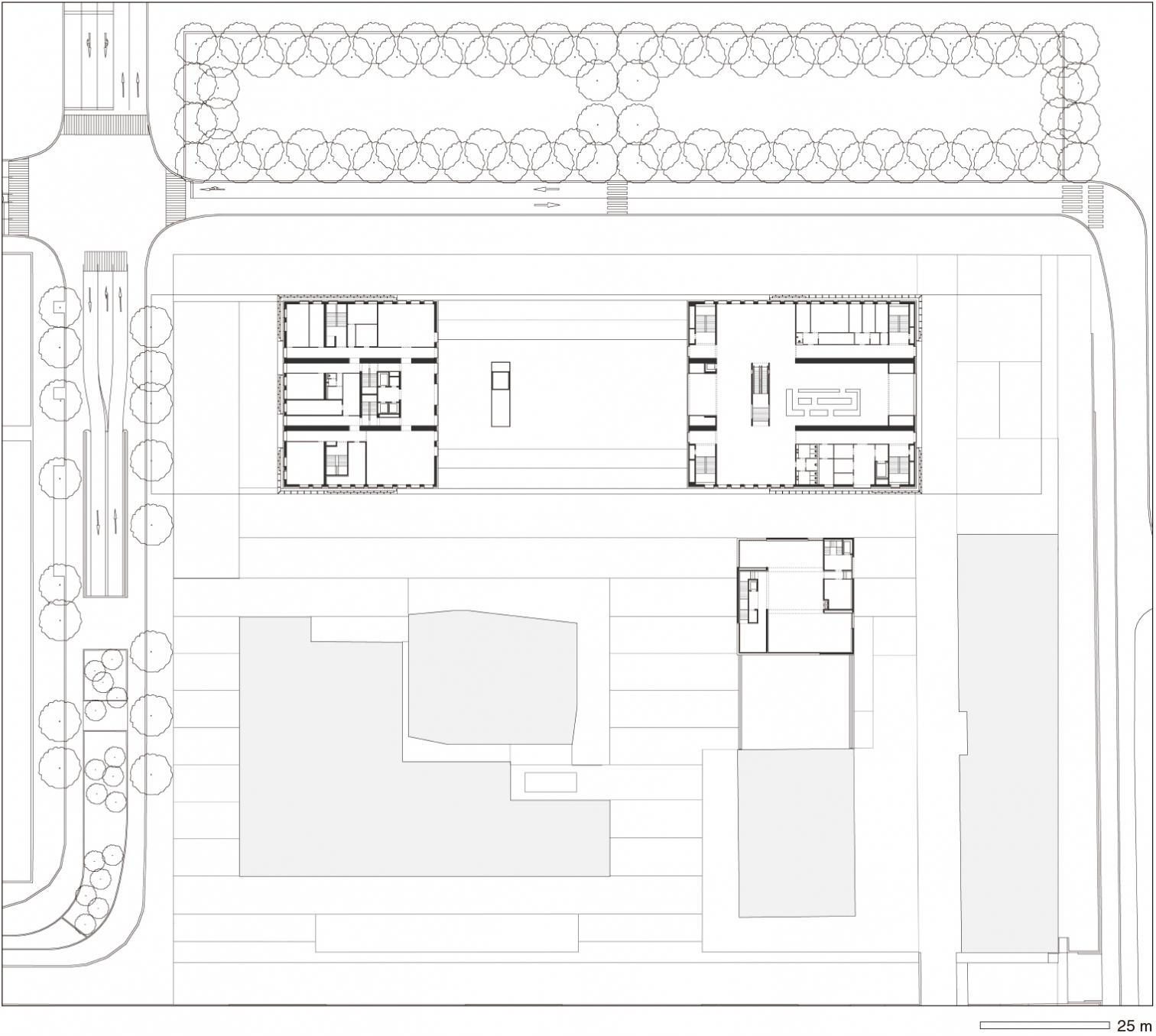
Hasta el año 2003, Luxemburgo no contó con universidad propia. Para compensar esta carencia, el Gobierno decidió crear un campus en Esch-sur-Alzette, la segunda ciudad más grande del país, en un recinto de 27 hectáreas que antiguamente se dedicaba a la producción de acero. El complejo, conocido como ‘Cité des sciences’, cuenta con dos altos hornos y las ruinas de un tercero que recuerdan el papel que tuvo Luxemburgo en el conflicto entre las industrias pesadas de Alemania y Francia. Esta condición anacrónica donde el pasado y el presente se solapan se refleja en el proyecto a través de su escala, acorde a las proporciones de los vestigios industriales, y la materialidad de su fachada, formada por piezas metálicas atornilladas.
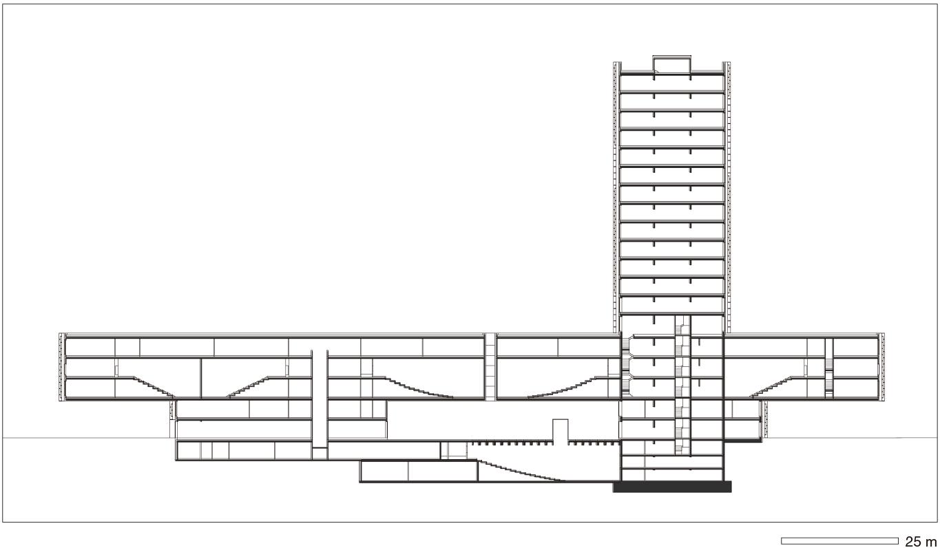
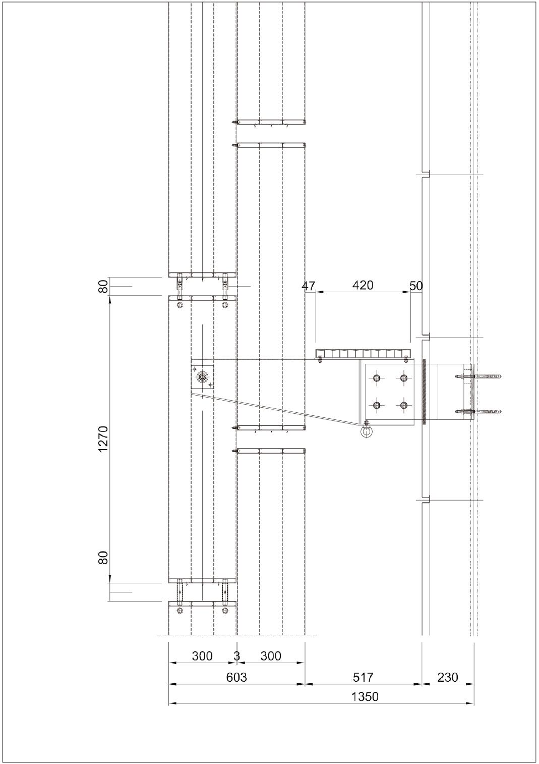
La ‘Casa del Conocimiento’, diseñada por Baumschlager Eberle Architekten en colaboración con el equipo local Christian Bauer & Associés, funciona como punto de partida y centro neurálgico del nuevo conjunto universitario. Su ambicioso esquema estructural, formado por una gran pieza horizontal suspendida en la base de un mástil vertical, delimita dos amplios vacíos cubiertos que comunican diferentes rutas peatonales y sirven como vestíbulos públicos. El edificio consigue, por tanto, integrarse en el tejido urbano a través de la permeabilidad en planta baja, sin renunciar a una posición aislada que le permite ser reconocible desde la distancia. Por su parte, la fachada —formada por una doble piel continua— también contribuye a generar una imagen distintiva que enfatiza la pureza de la geometría. La capa interior determina el limite climático de los diferentes espacios, mientras que la exterior se encarga de filtrar la iluminación. La incidencia del sol sobre esta retícula metálica genera un efecto
que enriquece la percepción dinámica del conjunto.
Dos grandes cerchas pretensadas embebidas en las fachadas longitudinales del volumen horizontal son las responsables del logro constructivo que da lugar a un espacio diáfano continuo. De esta forma, se genera un marco neutro que permite introducir configuraciones espaciales flexibles para alojar los diferentes usos. Además de auditorios, salas de conferencias y aulas, el programa incluye oficinas, áreas de profesores y restaurantes. Todo ello se complementa con pequeños vestíbulos y zonas de descanso que añaden variedad a los recorridos y ofrecen la oportunidad de establecer reuniones informales. En el prisma horizontal, la luz natural que llega a través de los paramentos verticales se complementa con lucernarios cenitales.
客服
消息
收藏
下载
最近



















