查看完整案例

收藏

下载

翻译
El centro de formación Hilti se sitúa en el límite entre el municipio de Schaan y el macizo de Rätikon, en Liechtenstein. El reto del proyecto era crear una identidad coherente, tanto en términos formales como funcionales, en contraste con el carácter heterogéneo del complejo industrial circundante donde Martin Hilti fundó en 1941 la empresa que hoy es una de las mayores fabricantes de anclajes y herramientas eléctricas para el sector de la construcción. El diseño debía, por tanto, trasladar los valores de la compañía a la arquitectura y convertirse en un símbolo de la marca, además de establecer un elemento de transición entre el entorno natural y la ciudad.
A pesar de la complejidad funcional del programa que incluye laboratorios de ensayo, aulas y oficinas, todos los espacios se integran en un solo cuerpo elemental: un prisma forrado de piedra que se asienta sobre la pendiente de la ladera. El acabado irregular de los bloques de gneis —una roca metamórfica formada por capas de cuarzo, feldespato y mica— vincula el edificio con el pico Naafkopf que actúa como telón de fondo y, al mismo tiempo, hace referencia a la tradición constructiva de la arquitectura regional. La textura y la materialidad de esta fachada enriquece la percepción del volumen puro y le transmite una imagen elegante y sólida.
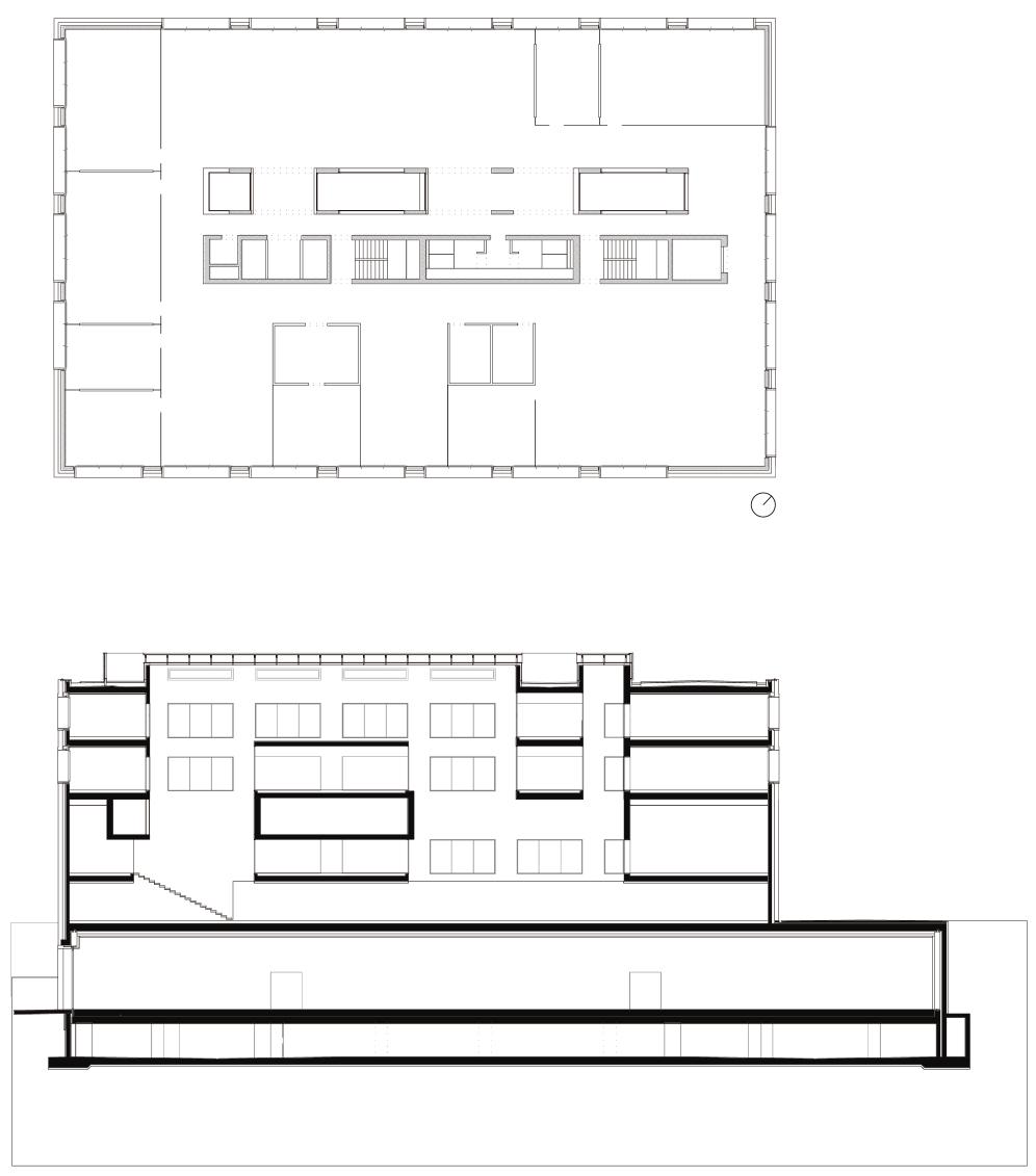
En el interior, las salas se organizan en torno a una franja iluminada cenitalmente paralela al núcleo estructural que a su vez alberga los espacios de servicio y distribución. Este dispositivo optimiza el aprovechamiento de la superficie construida ya que permite que la luz penetre en el compacto volumen a través de patios de varios niveles. La racionalidad geométrica que impera en el diseño no disminuye, por tanto, la riqueza espacial del conjunto ya que cada zona se ilumina y dimensiona cuidadosamente para generar transiciones dinámicas a lo largo de los diferentes recorridos. Así, el vestíbulo en planta baja, cuya altura es mínima, se conecta parcialmente con el atrio, y enfatiza su verticalidad a través del contraste. De la misma forma, en el nivel superior —que alberga aulas, una cafetería, un
de doble altura y una terraza panorámica— las distintas estancias se comunican entre sí y con el exterior a través de huecos que enmarcan vistas específicas. Esta cadena de conexiones, que determina cómo los usuarios perciben el edificio, no se consigue a través de la transparencia, sino a través del establecimiento y la apertura de límites que generan además una sensación de sorpresa.
客服
消息
收藏
下载
最近









